Beschreibung
# Objektbeschreibung
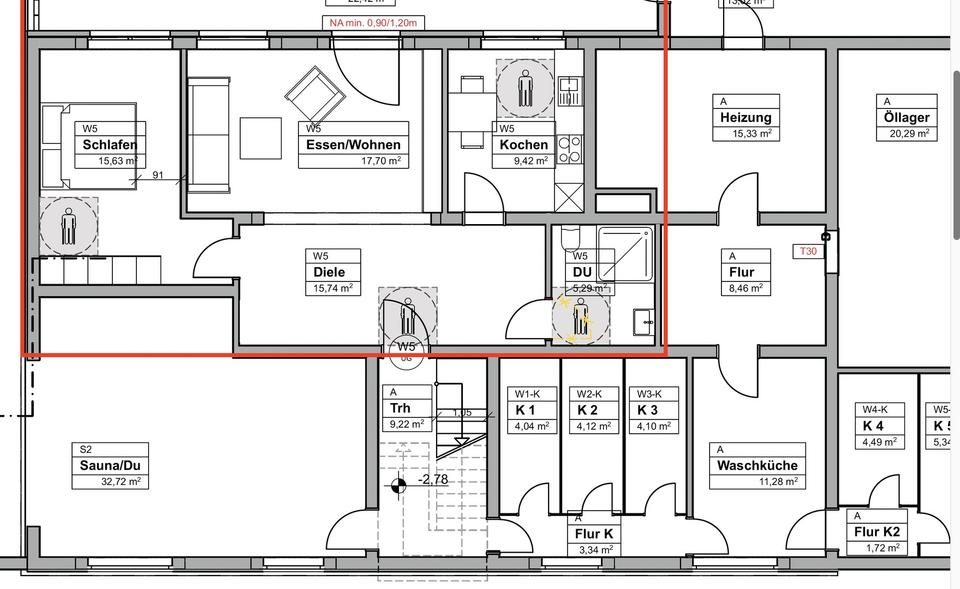
Hierbei handelt es sich um ein modernes familienfreundliche Wohngebäude, welche im Jahr 2022 vollständig neu saniert wurde. Damit ist es hier eine von insgesamt 5 attraktiven Wohnungen mit Erstbezug nach der Sanierung. Saniert wurden sämtliche Zimmern, Boden, Dach, Küchenfließen, Balkone und der Garten und komplette Badezimmern.
Zur Wohnung gehört auch eine große Terasse.
Zur Verfügung steht hier außerdem ein Kellerraum und großzügiger Waschraum mit Waschmaschinen-Anschluss im allgemeinen Bereich.
Eine geschlossene Garage kann auf Wunsch für 40 Euro monatlich ebenfalls angemietet werden.
# Ausstattung
Balkon, Terrasse, Keller, Duschbad, Fliesen
# Weitere Angaben
Verfügbar ab: 01.02.2026
Objektzustand: vollständig renoviert
Bodenbelag: Fliesen
Garagen/Stellplatzmiete: 40,00 €
# Lagebeschreibung
Das Objekt befindet sich in beliebter Wohnlage in Erftstadt-Herrig. Die Buslinien 990 verkehren in der Nähe. In der Umgebung im Umkreis von 4 km finden Sie mehrere Restaurants, Bäckereien, Ärzte, Supermärkte und Cafés.
Infrastruktur (im Umkreis von 5 km):
Apotheke, Lebensmittel-Discount, Allgemeinmediziner, Kindergarten, Grundschule, Hauptschule, Realschule, Gymnasium, Gesamtschule, Öffentliche Verkehrsmittel
# Sonstiges
Heizungsart: Zentralheizung
Energieträger: Öl
Makleranfragen nicht erwünscht. Nach § 7 UWG sind unaufgeforderte Kontaktaufnahmen durch Makler ohne ausdrückliche Einwilligung des Empfängers verboten!
ohne-makler (OM) ist weder Anbieter noch Vermittler der Immobilie. OM betreibt eine Plattform für Immobilieneigentümer, die unter anderem die gleichzeitige Veröffentlichung einzelner Inserate auf mehreren Immobilienportalen ermöglicht. Die Inhalte dieser Inserate werden ausschließlich von Dritten verantwortet. Für die Richtigkeit, Vollständigkeit oder Rechtmäßigkeit der Angaben übernimmt OM keine Haftung. Hinweise auf mögliche Rechtsverstöße können jederzeit gemeldet werden und werden nach Prüfung umgehend bearbeitet.
# Energie
Energieausweis: Energieverbrauchsausweis
Energieverbrauch: 1600 kWh/(m²*a)
Energieverbrauch für Warmwasser enthalten
Baujahr: 1980
Heizungsart: Zentralheizung
Wesentliche Energieträger: Öl
Anbieter-Objekt-ID: 240174






















