Beschreibung
# Objektbeschreibung
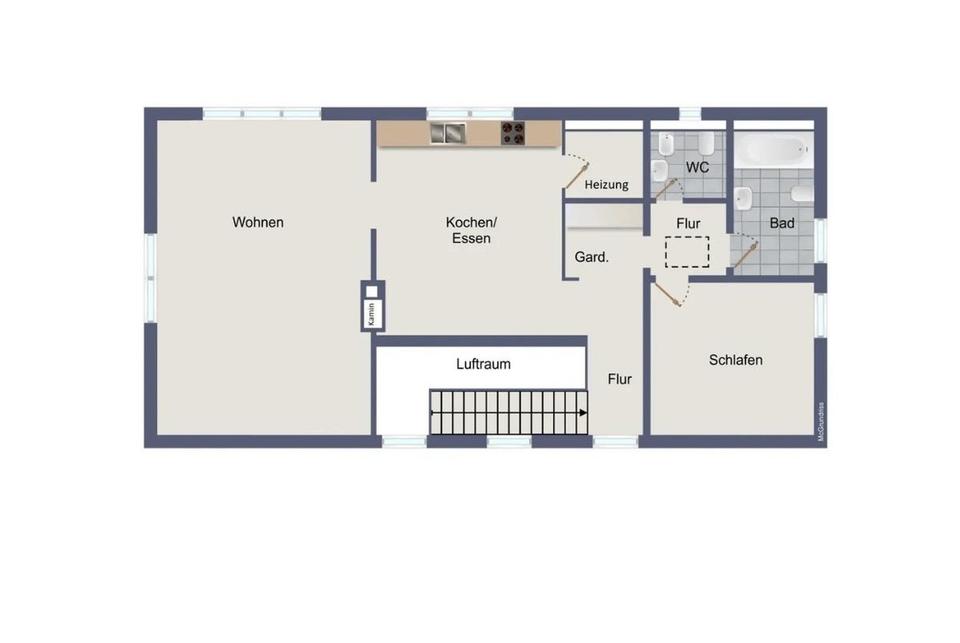
Dieses im Jahr 2001 erbaute Einfamilienhaus überzeugt mit 196m2 Wohnfläche verteilt auf 2 Etagen. Mit insgesamt 5 Zimmern bietet es ausreichend Platz für Familien und Paare.
Das Herzstück des Hauses ist der offen gestaltete Wohn-und Essbereich.
Die Einbauküche ist mit allen Annehmlichkeiten ausgestattet. Geschirrspüler, Kühlschrank, ein Herd mit Ceran -und Gaskochfeld, ein Backofen und Mikrowelle in komfortabler Arbeitshöhe. Ein integriertes Oberlicht sorgt für viel Tageslicht und unterstreicht das offene Raumgefühl.Ein moderner Kamin sorgt an kühleren Tagen für wohlige Wärme und erfüllt alle aktuellen Anforderungen .
Ein besonderes Highlight ist der lichtdurchflutete Kaben – Wintergarten mit edlen Kupferdach. Von hier aus gelangen Sie direkt auf die Terrasse und in den liebevoll angelegten Garten.
2 Terrassen mit unterschiedlicher Ausrichtung bieten Ihnen zu jeder Tageszeit den idealen Platz zum Entspannen – sei es zum Frühstück in der Morgensonne oder zum gemütlichen Grillabend mit Freunden.
Mit insgesamt 5 Zimmern bietet das Haus ausreichend Raum zur individuellen Gestaltung-ob Schlafzimmer,Kinderzimmer,Büro oder Hobbyraum.
Das gepflegte Grundstück mit ca. 1062 m2 bietet vielfältige Nutzungsmöglichkeiten – vom Spielbereich für Kinder über die Gartenfläche für Hobbygärtner bis hin zum Rückzugsort im Grünen. Ebenfalls perfekt für Haustiere da komplett eingezäunt.
Die Rasenpflege übernimmt ein Husquarna Rasenmäher-Roboter , sodass Sie Ihre Freizeit unbeschwert genießen können.
Ein Glasfaser Anschluss im Haus garantiert schnelles Internet- ideal für Homeoffice oder Streaming.
Eine Solar Anlage auf dem Dach sorgt für Energieersparnis.
Die Photovoltaik Anlage auf dem Dach erwirtschaftet jährlich ca. 2200€ für die Stromeinspeisung noch bis 2029!
Abgerundet wird das Angebot durch eine beheizte Garage, sowie mehrere Freistellplätze, die auch Besuchern genügend Parkmöglichkeiten bieten.
Die Immobilie ist nach Absprache verfügbar.
# Ausstattung
Terrasse, Wintergarten, Garten, Vollbad, Duschbad, Einbauküche, Gäste-WC, Kamin, Parkett, Fliesen
Bemerkungen:
Glasfaser im Haus
Fußbodenheizung im Bad EG und Wintergarten
Vaillant Gas Heizung neu eingebaut im März 2020
Kamin 2025
Energieausweis gültig bis 10.09.2035
# Weitere Angaben
Separate WCs: 1
Verfügbar ab: nach Absprache
Objektzustand: modernisiert
Bodenbelag: Fliesen, Parkett
Grundstücksfläche: ca. 1062 m²
# Lagebeschreibung
Lage
Zwischen den Meeren, 30 min. zur Nordsee (Husum), 30 min. zur Ostsee (Eckernförde).Das Einfamilienhaus befindet sich in Gammellund in der idyllischen Gemeinde Bollingstedt im Kreis Schleswig-Flensburg, eingebettet in die sanfte Landschaft der schleswigschen Geest. Die Umgebung ist geprägt von Wäldern, Wiesen, Seen und Mooren, was eine ausgesprochen ruhige und naturnahe Wohnlage schafft. In unmittelbarer Nähe laden der Mühlenteich, das Bollingstedter Moor sowie das Waldgebiet „Steinholz“ zu Spaziergängen, Radtouren und Naturbeobachtungen ein. Auch der Gammellunder See im gleichnamigen Ortsteil, ein geschütztes FFH-Gebiet, bietet Möglichkeiten zur Naherholung.
Trotz der ländlichen Lage ist die Grundversorgung gesichert: Schulen, Ärzte und Einkaufsmöglichkeiten sind in der rund 5 km entfernten Gemeinde Jübek erreichbar.
Weiterführende Schulen sowie ein breiteres medizinisches und kulturelles Angebot stehen in der nur zehn Autominuten entfernten Stadt Schleswig zur Verfügung.
Verkehrstechnisch ist Bollingstedt gut angebunden:
Über die nahe gelegene A7 sowie die Bundesstraße
B76 sind größere Städte wie Flensburg, Husum oder Kiel bequem erreichbar. Eine Busverbindung stellt den Anschluss zum Bahnhof in Jübek her, von dem aus regelmäßige Zugverbindungen Richtung Hamburg, Kiel,Husum und Flensburg bestehen. Die Wohnlage eignet sich ideal für Menschen, die naturnahes Wohnen mit guter Erreichbarkeit verbinden möchten. Das aktive Vereinsleben, vielfältige Freizeitangebote und eine engagierte Dorfgemeinschaft tragen zusätzlich zur hohen Lebensqualität bei und machen Bollingstedt zu einem attraktiven Standort für Familien, Paare oder Ruhesuchende.
Infrastruktur (im Umkreis von 5 km):
Apotheke, Lebensmittel-Discount, Allgemeinmediziner, Kindergarten, Grundschule, Öffentliche Verkehrsmittel
# Sonstiges
Heizungsart: Zentralheizung
Energieträger: Gas
Makleranfragen nicht erwünscht. Nach § 7 UWG sind unaufgeforderte Kontaktaufnahmen durch Makler ohne ausdrückliche Einwilligung des Empfängers verboten!
ohne-makler (OM) ist weder Anbieter noch Vermittler der Immobilie. OM betreibt eine Plattform für Immobilieneigentümer, die unter anderem die gleichzeitige Veröffentlichung einzelner Inserate auf mehreren Immobilienportalen ermöglicht. Die Inhalte dieser Inserate werden ausschließlich von Dritten verantwortet. Für die Richtigkeit, Vollständigkeit oder Rechtmäßigkeit der Angaben übernimmt OM keine Haftung. Hinweise auf mögliche Rechtsverstöße können jederzeit gemeldet werden und werden nach Prüfung umgehend bearbeitet.
# Energie
Energieausweis: Energieverbrauchsausweis
Energieverbrauch: 98 kWh/(m²*a)
Energieeffizienzklasse: C
Heizungsart: Zentralheizung
Wesentliche Energieträger: Gas
Anbieter-Objekt-ID: 418672
































