Beschreibung
# Objektbeschreibung
Büro oder Praxisräume in modernem Gebäude in ruhigem Gewerbegebiet mit Feldrandlage in einer Sackgasse und vielen Stellplätzen.
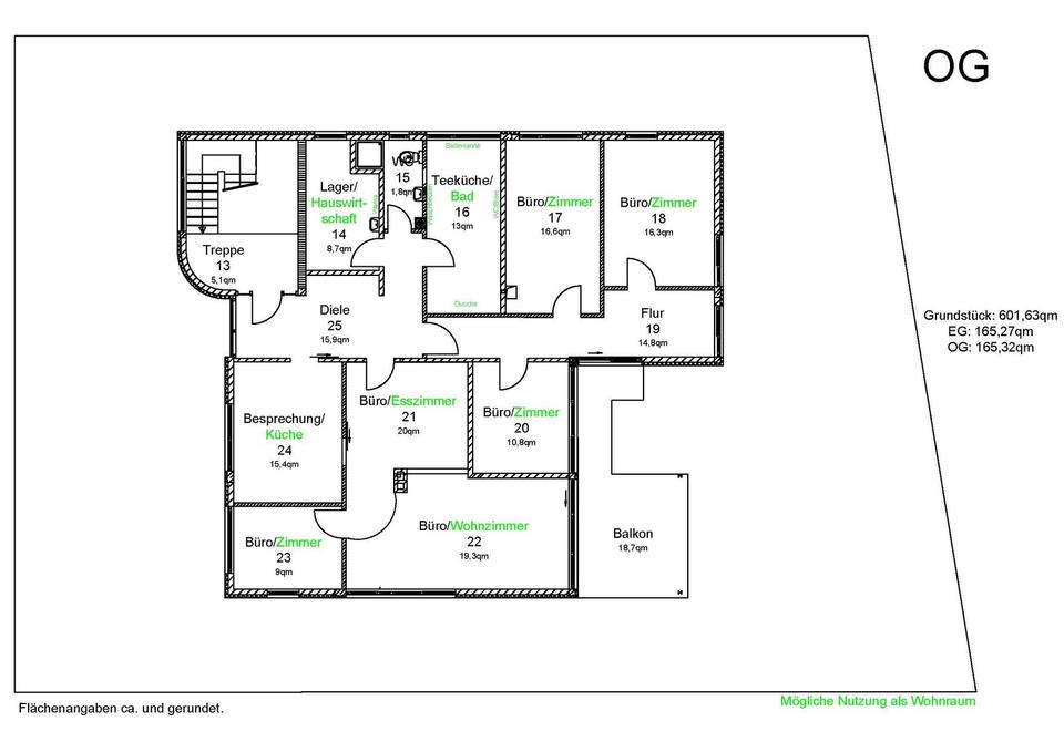
Zwei abgetrennte Einheiten mit separaten Zugängen, eingewachsenem Garten und direktem Zugang zum Feld, das Erdgeschoss ist barrierefrei.
Großer Balkon im Obergeschoss mit Zugang zum Garten und Terrasse im Erdgeschoss.
Gemäß Bebauungsplan ist hier das Wohnen für Geschäftsinhaber oder Aufsichtspersonal möglich, wenn am Standort ein Gewerbe / Selbstständigkeit oder ähnlich angemeldet ist. Daher ideal für Selbstständige, Gewerbetreibende, Freiberufler etc.
>>> Makleranfragen sind NICHT erwünscht <<<
! ! ! Verkauf von Privat OHNE Maklerprovision! ! ! !
# Ausstattung
Balkon, Terrasse, Garten, Duschbad, Gäste-WC, Barrierefrei, Parkett, Laminat, Fliesen
Bemerkungen:
Gebäude:
Das Wohn- und Bürogebäude wurde 2004 im Massivbau mit Dämmung errichtet.
Extensive Dachbegrünung auf dem Dach und Carport.
Holzfenster (Meranti), K-Wert 1,1 W/qm, abschließbar WK 2 mit Fensterbank aus Aluminium.
Jalousien aus Aluminium.
Hochwertige Geländer aus Stahl/Edelstahl an den Treppen und Balkongeländer.
Fußböden: Parkett, Laminat, Fliesen.
Hochwertige Pflaster im Außenbereich.
Abgeschlossener Hof und Mülltonnenplatz.
Einzelgarage, Carport und 8 Stellplätze.
Grundstück: 601qm
Kein Sanierungsstau!
Das Obergeschoss (ehem. Wohnung) wird aktuell als Büro genutzt, kann aber mit wenig Aufwand wieder als Wohnung hergerichtet werden.
Schornstein für Kamin im Obergeschoss vorhanden.
Technik:
Netzwerk- und Schwachstromkabel in allen Zimmern/Büros
Büros im Erdgeschoss ausgestattet mit Fensterbankkanal aus Aluminium und hochwertigem Schalterprogramm.
Siedle Klingelanlage für zwei Einheiten.
SmartHome (Homematic) Steuerung für Jalousien, Heizkörper sowie Außenbeleuchtung mit Bewegungsmelder.
Neuwertige Klimatisierung in fast allen Räumen.
Flüssiggasheizung mit unterirdischem Tank, Größe 4800 Liter (Verbrauch im Jahr aktuell ca. 2000 Liter = 1.150,- EUR (netto), günstiger Einkauf über Einkaufsgemeinschaft.
Glasfaseranschluss beantragt.
Alarmanlage mit Wählgerät zur Alarmweiterleitung.
Energieausweis liegt vor.
# Weitere Angaben
Separate WCs: 1
Verfügbar ab: sofort
Objektzustand: gepflegt
Bodenbelag: Fliesen, Parkett, Laminat
Bürofläche: ca. 350 m²
# Lagebeschreibung
Ruhige Feldrandlage in einer Sackgasse ohne Durchgangsverkehr.
Ideal auch für Hundebesitzer mit direktem Ausgang vom Garten zum Feld und Spazierwegen.
Infrastruktur (im Umkreis von 5 km):
Apotheke, Lebensmittel-Discount, Allgemeinmediziner, Kindergarten, Grundschule, Hauptschule, Realschule, Gymnasium, Gesamtschule, Öffentliche Verkehrsmittel
# Sonstiges
Heizungsart: Zentralheizung
Energieträger: Gas
Besichtigungen sind jederzeit möglich. Hierzu bitten wir um Ihre Anfrage über das Kontaktformular.
Die Anfrage muss folgende Informationen beinhalten:
– Ihre Festnetz- und/oder Mobilnummer
– Ihre E-Mail-Adresse
Vielen Dank
Makleranfragen nicht erwünscht. Nach § 7 UWG sind unaufgeforderte Kontaktaufnahmen durch Makler ohne ausdrückliche Einwilligung des Empfängers verboten!
ohne-makler (OM) ist weder Anbieter noch Vermittler der Immobilie. OM betreibt eine Plattform für Immobilieneigentümer, die unter anderem die gleichzeitige Veröffentlichung einzelner Inserate auf mehreren Immobilienportalen ermöglicht. Die Inhalte dieser Inserate werden ausschließlich von Dritten verantwortet. Für die Richtigkeit, Vollständigkeit oder Rechtmäßigkeit der Angaben übernimmt OM keine Haftung. Hinweise auf mögliche Rechtsverstöße können jederzeit gemeldet werden und werden nach Prüfung umgehend bearbeitet.
# Energie
Energieausweis: Energieverbrauchsausweis
Endenergieverbrauch Strom: 42 kWh/(m²*a)
Endenergieverbrauch Wärme: 81 kWh/(m²*a)
Heizungsart: Zentralheizung
Wesentliche Energieträger: Gas
Anbieter-Objekt-ID: 416351






















