Beschreibung
# Objektbeschreibung
Das offerierte 3-Familienhaus wurde 1962 auf einem 219 m² großen Grundstück erbaut. Eine energetische Sanierung mitsamt Fassadendämmung und neuem Dach wurde in den letzten Jahren bereits durchgeführt. Durch die zugleich stadtnahe und naturnahe Wohnlage in Neureut-Heide eignet sich die Immobilie zur Vermietung an Familien, Paare, Singles und Studenten.
Die Wohnfläche beträgt 216,36 m².
Sie verteilt sich auf die drei Wohneinheiten wie folgt:
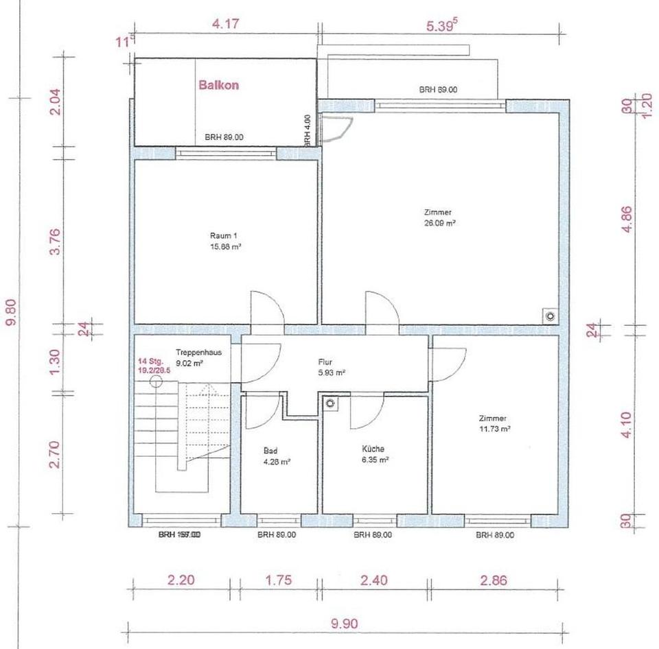
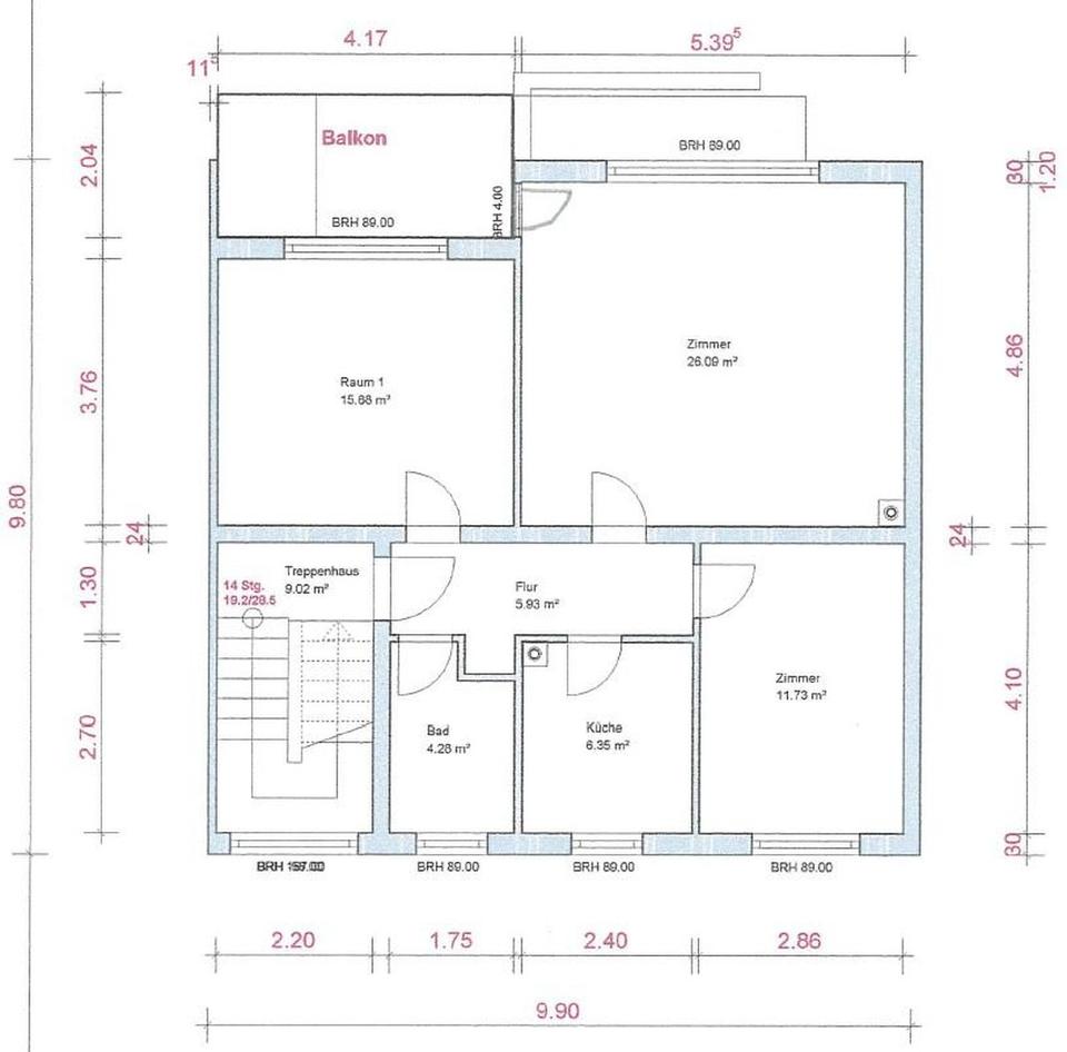
Erdgeschoss: 74,31 m² Wohnfläche, 3-Zimmer-Wohnung mit Küche, Badezimmer und Balkon mit Gartenzugang
Obergeschoss: 74,31 m² Wohnfläche, 3-Zimmer-Wohnung mit Küche, Badezimmer und Balkon
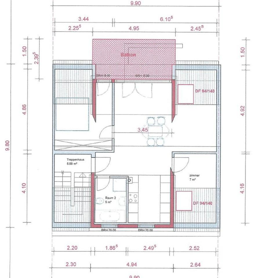
Dachgeschoss: 67,74 m² Wohnfläche, 3-Zimmer-Wohnung mit Küche, Badezimmer und Balkon
Alle drei Wohneinheiten sind vermietet.
Die aktuelle Jahresnettokaltmiete beträgt 24.816,00 €.
Dies entspricht einer durchschnittlichen Kaltmiete pro m² pro Monat in Höhe von 9,69 €.
Damit ist noch reichlich Mieterhöhungspotential für die nächsten Jahre gegeben.
# Ausstattung
Fliesen
Bemerkungen:
Die Immobilie besticht durch ihre sehr gute Substanz und ihren sehr gepflegten Zustand in sehr guter Lage.
Das Haus ist voll unterkellert. Jede Mietwohnung verfügt über einen separaten Kellerraum. Zudem steht ein gemeinsam genutzter Waschraum zur Verfügung.
Der wunderschöne, ruhige Garten wird derzeit von der Mieterin der EG-Wohnung genutzt.
Vor dem Gebäude befinden sich auf dem Grundstück genügend Fahrradstellplätze für alle Bewohner.
Der Eigentümer hat die Immobilie durchgehend sehr gut in Stand gehalten und alle notwendigen Investitionen bereits durchgeführt.
Die Renovierungen und Sanierungen im Einzelnen:
Wohnung im Erdgeschoss (2015):
✅ Modernisierung des Badezimmers (neue Wasser-/Stromleitungen, Wand-/Bodenfliesen, Sanitärobjekte, Handtuchheizkörper)
✅ Schlafzimmer, Flur und Wohnzimmer mit hochwertigen 3-Schicht-Parkettdielenböden.
✅ Schlafzimmer und Wohnzimmer mit neuen Heizkörpern
✅ Alle Räume mit neuen Fenstern, teilweise bodentief
Wohnung im Obergeschoss (2011):
✅ Modernisierung des Badezimmers (neue Wasser-/Stromleitungen, Wand-/Bodenfliesen, Sanitärobjekte, Handtuchheizkörper)
✅ Alle Räume mit neuen Fenstern
Wohnung im Dachgeschoss (2013 Neubau):
✅ Neuer Dachstuhl mit Dämmung und Neueindeckung
✅ Neubau eines Balkons
✅ Echtholz-Massivholzdielen in allen Räumen
✅ Erneuerung von Innenwänden, Badezimmer, Heizkörpern sowie Elektro- und Wasserinstallation
✅ Einbau neuer Fenster
Weitere Modernisierungen:
✅ 2020: Einbau einer neuen Gas-Brennwerttherme
✅ 2024: Dämmung der Fassade und der Kellerdecke; Austausch der Rollläden durch Außenrollläden
✅ 2024: Balkonsanierung EG/OG
# Weitere Angaben
Verfügbar ab: nach Absprache
Objektzustand: gepflegt
Bodenbelag: Fliesen, Kunststoff
Grundstücksfläche: ca. 219 m²
# Lagebeschreibung
Das 3-Familienhaus liegt verkehrsgünstig sehr gut angebunden im Karlsruher Stadtteil Neureut-Heide. Die Tram-Haltestelle Neureut-Heide ist nur 300 m entfernt.
Auf dem Grundstück befinden sich keine KfZ-Stellplätze. Es steht jedoch ausreichend öffentlicher Parkraum in unmittelbarer Umgebung zur Verfügung.
Sämtliche Einkaufsmöglichkeiten und städtische Infrastruktur (Ärzte, Schulen, KITAs, …) sind in wenigen Minuten erreichbar.
Für die Naherholung steht der Heidesee zur Verfügung, an welchem man nach einem arbeitsreichen Tag bei einem schönen Spaziergang entspannen kann.
Infrastruktur (im Umkreis von 5 km):
Apotheke, Lebensmittel-Discount, Allgemeinmediziner, Kindergarten, Grundschule, Hauptschule, Realschule, Gymnasium, Gesamtschule, Öffentliche Verkehrsmittel
# Sonstiges
Energieträger: Gas
Energieausweis: Bedarfsausweis gültig bis 22.08.2035
Endenergiebedarf: 106,7 kWh/(m²a)
Wesentliche Energieträger: Gas
Energieeffizienzklasse: D
Makleranfragen nicht erwünscht. Nach § 7 UWG sind unaufgeforderte Kontaktaufnahmen durch Makler ohne ausdrückliche Einwilligung des Empfängers verboten!
ohne-makler (OM) ist weder Anbieter noch Vermittler der Immobilie. OM betreibt eine Plattform für Immobilieneigentümer, die unter anderem die gleichzeitige Veröffentlichung einzelner Inserate auf mehreren Immobilienportalen ermöglicht. Die Inhalte dieser Inserate werden ausschließlich von Dritten verantwortet. Für die Richtigkeit, Vollständigkeit oder Rechtmäßigkeit der Angaben übernimmt OM keine Haftung. Hinweise auf mögliche Rechtsverstöße können jederzeit gemeldet werden und werden nach Prüfung umgehend bearbeitet.
# Energie
Energieausweis: Energiebedarfsausweis
Endenergiebedarf: 106 kWh/(m²*a)
Energieeffizienzklasse: D
Wesentliche Energieträger: Gas
Anbieter-Objekt-ID: 409405





















