Beschreibung
# Objektbeschreibung
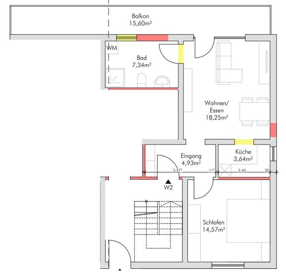
2-Zimmer-Wohnung mit ca. 56,53 m²
Kaltmiete: 622€
Miete Außenstellplätze: 100€
Nebenkosten: 130€
Miete Gesamt: 852€
Die angebotene 2-Zimmer-Wohnung befindet sich in ruhiger Lage in der Jägerhölzlstraße 17 in Lalling. Sie überzeugt durch eine moderne Ausstattung, helle Räume und einen praktischen Grundriss.
Beim Betreten der Wohnung gelangt man in den Flur, von dem aus alle Räume erreichbar sind. Das Wohnzimmer, sowie das Schlafzimmer sind mit einem ansprechenden Vinylboden in Holzoptik ausgestattet, der für eine warme und gemütliche Wohnatmosphäre sorgt. Große Fensterflächen lassen viel Tageslicht in die Räume und schaffen ein angenehmes Wohngefühl.
Die Küche ist separat abgetrennt und verfügt über eine moderne Einbauküche (ohne Kühlschrank und Spülmaschine).
Das Badezimmer ist zeitgemäß mit großformatigen Fliesen, einer Dusche, WC und Waschbecken ausgestattet.
Ein besonderes Highlight ist der Balkon, der zum Entspannen im Freien einlädt und zusätzlichen Wohnkomfort bietet.
Ein eigenes Kellerabteil bietet zusätzlichen Stauraum. Zur Wohnung gehören außerdem zwei Außenstellplätze, die jeweils für 50 € monatlich angemietet werden müssen.
# Ausstattung
Balkon, Duschbad, Fliesen
Bemerkungen:
* Vinylboden
* Kellerraum
* Zeitlos gefliestes Badezimmer mit Dusche, WC und Waschbecken
* Balkon mit Blick ins Grüne
* Einbauküche (ohne Kühlschrank und Spülmaschine)
* Zwei Außenstellplätze
# Weitere Angaben
Verfügbar ab: 01.10.2025
Objektzustand: neuwertig
Bodenbelag: Fliesen, Kunststoff
Garagen/Stellplatzmiete: 100,00 €
# Lagebeschreibung
Die Wohnung befindet sich in ruhiger Wohnlage in der Jägerhölzlstraße 17 in Lalling, im schönen Bayerischen Wald. Die Gemeinde Lalling gehört zum Landkreis Deggendorf und ist bekannt für ihre hohe Lebensqualität, Naturverbundenheit und die Nähe zu zahlreichen Freizeit- und Erholungsmöglichkeiten.
Einkaufsmöglichkeiten für den täglichen Bedarf, Bäckereien, Ärzte sowie Restaurants befinden sich direkt im Ort und sind bequem zu Fuß oder mit dem Fahrrad erreichbar. Weitere Einkaufsmöglichkeiten, Schulen und weiterführende Infrastruktur finden sich in Deggendorf (ca. 15 Fahrminuten) oder Hengersberg (ca. 10 Fahrminuten).
Die Verkehrsanbindung ist sehr gut: Über die nahegelegene Bundesstraße B533 sowie die Autobahn A3 sind Städte wie Deggendorf, Passau oder Regensburg schnell erreichbar.
Natur- und Freizeitliebhaber profitieren von der idyllischen Umgebung: Wander- und Radwege, das Lallinger Freizeitzentrum sowie zahlreiche Ausflugsziele im Bayerischen Wald bieten Abwechslung und Erholung direkt vor der Haustüre.
Infrastruktur (im Umkreis von 5 km):
Lebensmittel-Discount, Allgemeinmediziner, Kindergarten, Grundschule, Öffentliche Verkehrsmittel
# Sonstiges
Heizungsart: Fußbodenheizung
Energieträger: Holzpellets
Sonstige Unterlagen:
– https://www.ohne-makler.net/immobilie/file/1577896.pdf (Energieausweis)
Makleranfragen nicht erwünscht. Nach § 7 UWG sind unaufgeforderte Kontaktaufnahmen durch Makler ohne ausdrückliche Einwilligung des Empfängers verboten!
ohne-makler (OM) ist weder Anbieter noch Vermittler der Immobilie. OM betreibt eine Plattform für Immobilieneigentümer, die unter anderem die gleichzeitige Veröffentlichung einzelner Inserate auf mehreren Immobilienportalen ermöglicht. Die Inhalte dieser Inserate werden ausschließlich von Dritten verantwortet. Für die Richtigkeit, Vollständigkeit oder Rechtmäßigkeit der Angaben übernimmt OM keine Haftung. Hinweise auf mögliche Rechtsverstöße können jederzeit gemeldet werden und werden nach Prüfung umgehend bearbeitet.
# Energie
Energieausweis: Energiebedarfsausweis
Endenergiebedarf: 73 kWh(m²*a)
Energieeffizienzklasse: B
Baujahr: 2022
Heizungsart: Fußbodenheizung
Wesentliche Energieträger: Pellets
Anbieter-Objekt-ID: 390670















