Beschreibung
# Objektbeschreibung
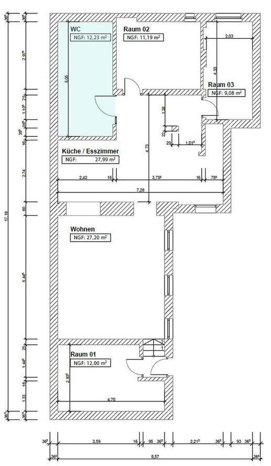
Diese großzügige und lichtdurchflutete 4-Raum-Wohnung in der beliebten Sielower Straße überzeugt durch eine moderne Ausstattung, stilvolle Raumaufteilung und eine große, direkt zugängliche Terrasse – perfekt für Paare, Familien oder Wohngemeinschaften.
Die Wohnung wurde umfassend saniert und bietet ein Wohngefühl auf gehobenem Niveau. Highlights wie LED-Deckenspots, Design-Böden, eine offene Wohnküche und ein luxuriöses Tageslichtbad mit bodentiefer Regen-Dusche + Badewanne machen dieses Objekt zu etwas ganz Besonderem.
Ausstattung
Wohnbereich & Zimmer:
großer, heller Wohnbereich mit moderner Steinwand & LED-Spots
hochwertige Designböden in Holzoptik
3 separat begehbare Schlafzimmer / Arbeitszimmer
neue Innentüren
bodentiefe Fenster bzw. große Fensterfronten für viel Licht
direkter Zugang zur Terrasse vom Wohnbereich
Küche:
offene Wohnküche
moderne Einbauküche mit viel Stauraum
pflegeleichte, dunkle Bodenfliesen
LED-Beleuchtung
idealer Übergang in Essbereich / Wohnbereich
Bad:
stilvolles Tageslichtbad
große, ebenerdige Walk-in-Dusche (Rainshower)
zusätzliche Badewanne
moderner Handtuchheizkörper
hochwertige großformatige Fliesen
dezente Deckenbeleuchtung
Terrasse & Außenbereich:
ca. 14 m² große Terrasse
direkt vom Wohnbereich oder Hauseingang erreichbar
ruhiger Hofbereich mit Platz für Sitzmöbel, Grill, Pflanzen etc.
Weitere Merkmale:
Erdgeschosslage mit separatem Eingang im Hofbereich
großer, offener Eingangs- & Küchenbereich
frisch renoviert
helle, freundliche Räume
gute Nachbarschaft & ruhige Lage
Lage
Die Wohnung befindet sich in der Sielower Straße – einer gefragten Wohngegend im Norden von Cottbus.
In unmittelbarer Nähe befinden sich:
Einkaufsmöglichkeiten
Die Uni, Schulen & Kitas
Bushaltestellen / ÖPNV
Ärzte & Apotheken
Parkanlagen und grüne Wohnumgebung
Die Innenstadt ist schnell erreichbar, dennoch wohnt man angenehm ruhig.
Sonstiges
Die Wohnung eignet sich ideal für:
✔ Familien
✔ Paare
✔ Wohngemeinschaften
✔ Berufstätige, die Wert auf moderne Ausstattung legen
# Ausstattung
Balkon, Terrasse, Garten, Keller, Vollbad, Einbauküche, Laminat, Fliesen
# Weitere Angaben
Verfügbar ab: nach Absprache
Objektzustand: neuwertig
Bodenbelag: Fliesen, Laminat
# Lagebeschreibung
Infrastruktur (im Umkreis von 5 km):
Apotheke, Lebensmittel-Discount, Allgemeinmediziner, Kindergarten, Grundschule, Hauptschule, Realschule, Gymnasium, Gesamtschule, Öffentliche Verkehrsmittel
# Sonstiges
Heizungsart: Zentralheizung
Energieträger: Gas
Energieausweis nicht vorhanden
Makleranfragen nicht erwünscht. Nach § 7 UWG sind unaufgeforderte Kontaktaufnahmen durch Makler ohne ausdrückliche Einwilligung des Empfängers verboten!
ohne-makler (OM) ist weder Anbieter noch Vermittler der Immobilie. OM betreibt eine Plattform für Immobilieneigentümer, die unter anderem die gleichzeitige Veröffentlichung einzelner Inserate auf mehreren Immobilienportalen ermöglicht. Die Inhalte dieser Inserate werden ausschließlich von Dritten verantwortet. Für die Richtigkeit, Vollständigkeit oder Rechtmäßigkeit der Angaben übernimmt OM keine Haftung. Hinweise auf mögliche Rechtsverstöße können jederzeit gemeldet werden und werden nach Prüfung umgehend bearbeitet.
# Energie
Heizungsart: Zentralheizung
Wesentliche Energieträger: Gas
Anbieter-Objekt-ID: 413415























