Beschreibung
# Objektbeschreibung
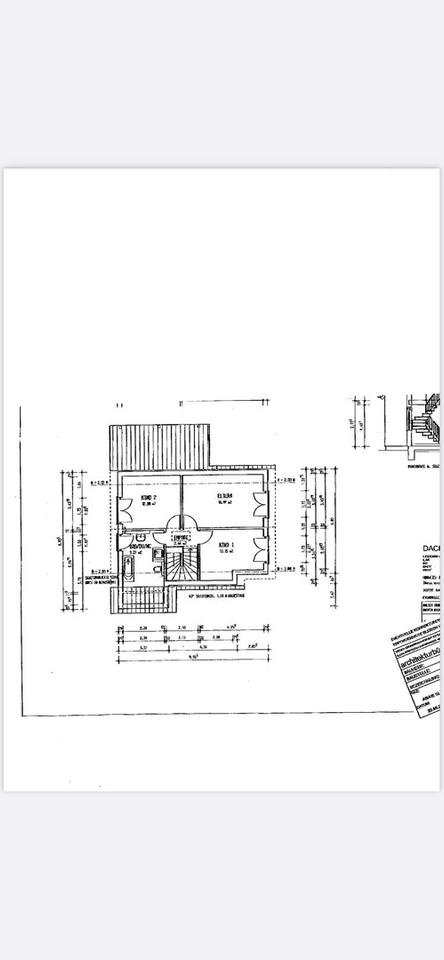
Dieses energieeffiziente Einfamilienhaus (Baujahr 2007) mit 117 m² Wohnfläche und 23m² Nutzfläche überzeugt durch seine moderne Ausstattung, durchdachte Raumaufteilung und ruhige aber zentrale Lage in einer Sackgasse. Es verfügt über 4 Zimmer, einen großzügigen Wohn-/Essbereich, eine Einbauküche, sowie einen gepflegten Garten – ideal für Familien oder Paare mit Platzbedarf. Über lediglich eine Stufe erreichen Sie den offenen Wohn-/Essbereich und die Küche. Zusätzlich im Erdgeschoss befinden sich das Gästebad, der Hauswirtschaftsraum und die Garderobe. Über die Treppe erreichen Sie die 3 Schlafzimmer und das Bad im Obergeschoss.
Ausstattung:
Energieeffizienzklasse: A+
Wärmepumpe mit Fußbodenheizung in allen Räumen
Photovoltaikanlage zur Stromproduktion
22kW Wallbox – ideal für E-Mobilität
Regenwasserzisterne für Garten und WC
Einbauküche mit hochwertigen Geräten im Kaufpreis enthalten
Carport mit direktem Zugang + 1-2 weitere Stellplätze
Helle, gut geschnittene Räume mit bodentiefen Fenstern
Modernes Badezimmer + Gäste-WC
Dachboden mit viel Stauraum
Maßgefertigte Insektenschutzgitter
Gepflegter Garten mit Terrasse
Biohort Gartenhaus
# Ausstattung
Terrasse, Garten, Vollbad, Einbauküche, Gäste-WC, Fliesen
# Weitere Angaben
Separate WCs: 1
Verfügbar ab: nach Absprache
Objektzustand: gepflegt
Bodenbelag: Fliesen
Grundstücksfläche: ca. 400 m²
# Lagebeschreibung
Das Haus befindet sich in einem ruhigen, gewachsenen Wohngebiet von Freigericht-Altenmittlau, am Ende einer Sackgasse – familienfreundlich und verkehrsarm.
Einkaufsmöglichkeiten, Ärzte und Busanbindungen sind in wenigen Minuten erreichbar. Die Europaschule Kopernikusschule sowie weitere Kindergärten und Schulen befinden sich in direkter Umgebung. In unmittelbarer Umgebung der Immobilie fahren die Buslinien 30, MKK-50 und MKK-53. Auch mehrere Fitnessstudios, Grün- und Parkanlagen, Postannahmestelle, Apotheke und ein Physiotherapeut sind gut erreichbar.
Infrastruktur (im Umkreis von 5 km):
Apotheke, Lebensmittel-Discount, Allgemeinmediziner, Kindergarten, Grundschule, Hauptschule, Realschule, Gymnasium, Gesamtschule, Öffentliche Verkehrsmittel
# Sonstiges
Heizungsart: Fußbodenheizung
Energieträger: Strom
Bezugsfrei nach Absprache
Provisionsfrei – kein Makler – sparen Sie fast 22.000€
Grundstücksgröße 400qm, effektiv über 500qm nutzbar
Makleranfragen nicht erwünscht. Nach § 7 UWG sind unaufgeforderte Kontaktaufnahmen durch Makler ohne ausdrückliche Einwilligung des Empfängers verboten!
ohne-makler (OM) ist weder Anbieter noch Vermittler der Immobilie. OM betreibt eine Plattform für Immobilieneigentümer, die unter anderem die gleichzeitige Veröffentlichung einzelner Inserate auf mehreren Immobilienportalen ermöglicht. Die Inhalte dieser Inserate werden ausschließlich von Dritten verantwortet. Für die Richtigkeit, Vollständigkeit oder Rechtmäßigkeit der Angaben übernimmt OM keine Haftung. Hinweise auf mögliche Rechtsverstöße können jederzeit gemeldet werden und werden nach Prüfung umgehend bearbeitet.
# Energie
Energieausweis: Energieverbrauchsausweis
Energieverbrauch: 25 kWh/(m²*a)
Energieeffizienzklasse: A+
Heizungsart: Fußbodenheizung
Wesentliche Energieträger: Elektrisch
Anbieter-Objekt-ID: 410065






















