Beschreibung
# Objektbeschreibung
Herzlich willkommen in Ihrem neuen Zuhause!
Dieses attraktive Reihenmittelhaus überzeugt durch eine durchdachte Raumaufteilung, einen gepflegten Garten sowie zwei Stellplätze direkt vor dem Haus. Mit ca. 141 m² Wohnfläche bietet es ideale Voraussetzungen für Paare, kleine Familien oder alle, die modernes Wohnen in ruhiger Lage schätzen.
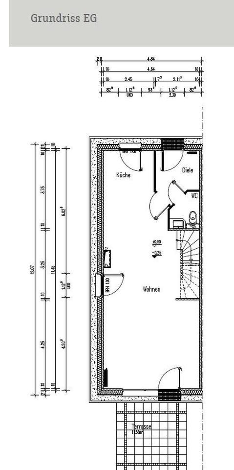
Im Erdgeschoss empfängt Sie ein großzügiger, lichtdurchfluteter Wohn- und Essbereich mit breiter Fensterfront, der einen harmonischen Übergang zur überdachten Terrasse und in den Garten schafft – der perfekte Ort für gemütliche Stunden oder geselliges Beisammensein.
Die angrenzende Küche ist funktional angelegt und durch ihr offenes Konzept nahtlos in den Wohn- und Essbereich integriert. Kurze Wege beim Kochen und die direkte Nähe zum Essbereich sorgen dafür, dass Sie stets mitten im Geschehen bleiben – sei es beim Familienfrühstück oder beim gemeinsamen Abendessen mit Gästen.
Ein Gäste-WC rundet diese Ebene komfortabel ab und sorgt für zusätzlichen Komfort.
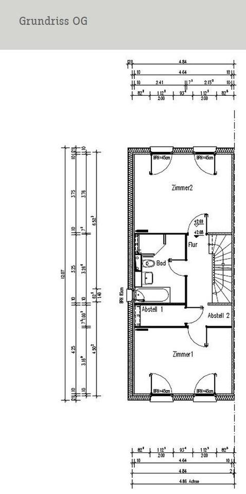
Im Obergeschoss erwarten Sie zwei helle, gut geschnittene Zimmer, die sich ideal als Elternschlafzimmer, Kinderzimmer oder Homeoffice nutzen lassen. Das Hauptschlafzimmer verfügt über eine praktische, begehbare Nische, die sich hervorragend als Kleiderschrank einrichten lässt – ein cleverer Stauraum, der Ordnung und Komfort vereint.
Das moderne Badezimmer auf dieser Ebene ist mit Badewanne und separater Dusche ausgestattet. Zusätzlich steht eine Abstellkammer zur Verfügung, die praktischen Stauraum für Dinge des täglichen Bedarfs bietet.
Ein besonderes Highlight des Hauses ist das Dachgeschoss: Es bietet zwei weitere vollwertige Zimmer, ideal als zusätzliche Schlafzimmer, Gästezimmer oder Hobbybereiche. Ergänzt wird diese Etage durch ein modernes Duschbad, das den Wohnkomfort weiter erhöht.
Vom Dachgeschoss aus haben Sie zudem Zugang zum Dachboden, der zusätzlichen Stauraum bietet und sich perfekt zur Unterbringung seltener genutzter Gegenstände eignet – eine praktische Erweiterung des Wohnraums, die Flexibilität und Ordnung schafft.
Der liebevoll angelegte Garten mit überdachter Terrasse lädt zu entspannten Stunden im Freien ein – ideal für Grillabende, Spielmöglichkeiten für Kinder oder ein kleines Kräuter- und Blumenbeet. Die Terrasse ist mit einer lichtdurchlässigen Glasüberdachung versehen, die viel Tageslicht hereinlässt und zugleich Schutz bei jedem Wetter bietet.
Ein zusätzliches Gartenhäuschen rundet das Angebot ab und lässt sich vielseitig nutzen – sei es zur Aufbewahrung von Gartengeräten, Fahrrädern oder als kleiner Hobbyraum. So genießen Sie Ihren Außenbereich in jeder Jahreszeit komfortabel und flexibel.
Ein rundum stimmiges und vielseitiges Zuhause, das durch Komfort, durchdachte Raumaufteilung und eine familienfreundliche Lage überzeugt – ideal für alle, die Wert auf Wohnqualität und eine ausgewogene Mischung aus Natur und Infrastruktur legen.
# Ausstattung
Terrasse, Garten, Vollbad, Einbauküche, Laminat, Fliesen
Bemerkungen:
Das Haus verfügt über fünf gut geschnittene Zimmer auf drei Ebenen und bietet zwei moderne Bäder, eines mit Badewanne und separater Dusche im Obergeschoss, das andere als Duschbad im Dachgeschoss, sowie ein Gäste-WC im Erdgeschoss. Die offene Küche ist mit einer modernen Einbauküche ausgestattet und nahtlos in den Wohn- und Essbereich integriert. Zusätzlichen Stauraum bieten die praktische Abstellkammer und der Dachboden.
Das Haus verfügt über fünf gut geschnittene Zimmer auf drei Ebenen und bietet zwei moderne Bäder – eines mit Badewanne und separater Dusche im Obergeschoss, das andere als Duschbad im Dachgeschoss – sowie ein Gäste-WC im Erdgeschoss. Die offene Küche ist mit einer modernen Einbauküche ausgestattet und nahtlos in den Wohn- und Essbereich integriert. Zusätzlichen Stauraum bieten die praktische Abstellkammer und der Dachboden.
Die Wohnbereiche sind mit hochwertigen Laminat ausgestattet. Die Bäder, das Gäste-WC sowie Küche und Eingangsbereich funktional gefliest. Der Garten mit überdachter Glas-Terrasse lädt zu entspannten Stunden im Freien ein und wird durch ein Gartenhäuschen ergänzt, das zusätzlichen Stauraum oder Platz für Hobbys bietet. Zwei Stellplätze direkt am Haus stehen zur Verfügung, jeweils zu einem Preis von 10.000 €.
# Weitere Angaben
Verfügbar ab: sofort
Objektzustand: gepflegt
Bodenbelag: Fliesen, Laminat
Grundstücksfläche: ca. 150 m²
# Lagebeschreibung
Das Reihenmittelhaus befindet sich in einer ruhigen und dennoch verkehrsgünstigen Wohnlage am Johann-Kaiser-Ring in Hanau. Die Nachbarschaft ist geprägt von gepflegten Reihen- und Einfamilienhäusern und bietet ein harmonisches, familienfreundliches Umfeld.
Alle wichtigen Einkaufsmöglichkeiten für den täglichen Bedarf – darunter Supermärkte, Bäckereien und Drogerien – sind schnell erreichbar. Besonders praktisch: Das Fachmarktzentrum Kinzigbogen liegt nur wenige Gehminuten entfernt und bietet ein umfangreiches Sortiment an Geschäften und Dienstleistungen. Auch Arztpraxen und Apotheken befinden sich in unmittelbarer Nähe.
Für Familien ist die Lage ideal: Kindertagesstätten und Grundschulen sind bequem zu Fuß oder mit dem Fahrrad erreichbar, weiterführende Schulen sind gut angebunden. Zahlreiche Spielplätze, Sport- und Freizeitangebote sowie Grünflächen und Parkanlagen laden zu Aktivitäten im Freien ein und sorgen für hohe Lebensqualität.
Pendler profitieren von der schnellen Anbindung an die A66, B43a und B45, sodass Ziele im gesamten Rhein-Main-Gebiet komfortabel erreichbar sind. Auch die Hanauer Innenstadt sowie öffentliche Verkehrsmittel mit regelmäßigen Verbindungen in die umliegenden Stadtteile liegen nur wenige Minuten entfernt.
So vereint diese Wohnadresse ruhiges, naturnahes Wohnen mit hervorragender Infrastruktur, hoher Mobilität und vielseitigen Freizeitmöglichkeiten – ideal für Familien, Berufspendler oder alle, die eine ausgewogene Lebensqualität suchen.
Infrastruktur (im Umkreis von 5 km):
Apotheke, Lebensmittel-Discount, Allgemeinmediziner, Kindergarten, Grundschule, Öffentliche Verkehrsmittel
# Sonstiges
Heizungsart: Zentralheizung
Energieträger: Gas
Sonstige Unterlagen:
– https://www.ohne-makler.net/immobilie/file/1590516.pdf (Finanzierungsexposé)
Makleranfragen nicht erwünscht. Nach § 7 UWG sind unaufgeforderte Kontaktaufnahmen durch Makler ohne ausdrückliche Einwilligung des Empfängers verboten!
ohne-makler (OM) ist weder Anbieter noch Vermittler der Immobilie. OM betreibt eine Plattform für Immobilieneigentümer, die unter anderem die gleichzeitige Veröffentlichung einzelner Inserate auf mehreren Immobilienportalen ermöglicht. Die Inhalte dieser Inserate werden ausschließlich von Dritten verantwortet. Für die Richtigkeit, Vollständigkeit oder Rechtmäßigkeit der Angaben übernimmt OM keine Haftung. Hinweise auf mögliche Rechtsverstöße können jederzeit gemeldet werden und werden nach Prüfung umgehend bearbeitet.
# Energie
Energieausweis: Energieverbrauchsausweis
Energieverbrauch: 60 kWh/(m²*a)
Energieeffizienzklasse: B
Heizungsart: Zentralheizung
Wesentliche Energieträger: Gas
Anbieter-Objekt-ID: 413838

































