Beschreibung
# Objektbeschreibung
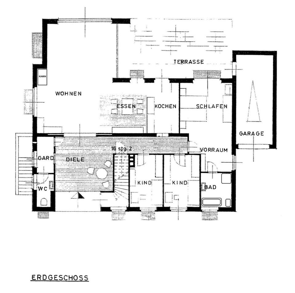
Dieses großzügige und vollständig modernisierte Zweifamilienhaus mit separater Einliegerwohnung vereint zeitlose Eleganz, hochwertige Materialien und moderne Energietechnik. Mit exklusiver Ausstattung, großzügigem Grundstück und vielseitiger Nutzungsmöglichkeit ist es perfekt für Familien, Mehrgenerationenwohnen oder Wohnen & Vermieten unter einem Dach. Zu der Ausstattung des Anwesens gehören Travertin-Naturstein- und Echtholzparkett Böden, elektrische Rollläden, ein Kamin im Wohnbereich, eine Sauna mit entsprechender Sanitäreinrichtung, eine große überdachte Terrasse. Großzügige, neu gepflasterte Einfahrt mit einer Toranlage bietet viel Platz zum Parken mehrerer Fahrzeuge. Im großen Garten wachsen Obstbäume, Beeren Sträucher und Blumen.
Dank Photovoltaikanlage und Wärmepumpe erfüllt das Haus höchste Ansprüche an Nachhaltigkeit. Das Anwesen wurde in den letzten Jahren umfassend saniert und präsentiert sich heute in einem neuwertigen Zustand mit außergewöhnlich gehobenem
Wohnkomfort.
# Ausstattung
Terrasse, Garten, Keller, Dachterrasse, Duschbad, Sauna, Einbauküche, Gäste-WC, Kamin, Parkett, Sonstiges (s. Text)
Bemerkungen:
Modernisierungsmaßnahmen:
•11.2017 – Wände und Decken im Erdgeschoß gespachtelt, geschliffen, gestrichen
•11.2017 – Abbau und Entsorgung von Trockenbau und Dämmung in der Einliegerwohnung, Entsorgung der alten Dämmung
•11.2017 – Einbau der neuen Dachfenster
•11.2017 – Einbau von Mineralfaserdämmung, GK-Bekleidung der Dachschräge inklusive Lattenunterkonstruktion, Oberflächen in Q2 gespachtelt und angestrichen
•11.2017 – Dachspitzboden neu belegt, Dachbodentreppe eingebaut
•11.2017 – Errichtung eines Edelsteinschornsteins
•11.2017 – Reparatur vom Travertin Bodenbelag
•11.2017 – Dachreparatur
•11.2017 – Dämmung der Rollläden Kästen
•12.2017 – Parkettböden geschliffen und geölt
•01.2018 – Kamin Installation
•03.2018 – Neue elektrische Rollläden in der Einliegerwohnung eingebaut
•09.2018 – Badezimmer in der Einliegerwohnung saniert
•09.2018 – Neue Türen in der Einliegerwohnung eingebaut
•10.2018 – Gartenhaus aufgebaut
•06.2020 – Neue Zäune aufgestellt
•09.2020 – Überdachung der Außentreppe installiert
•09.2020 – Eine Toranlage aufgebaut
•12.2020 – Einbau neuer Sanitäreinrichtungen im Saunabereich
•02.2021 – Hauselektrik modernisiert
•05.2021 – Gäste-WC im Erdgeschoß saniert
•07.2021 – Pflasterarbeiten: Haus und Garageneinfahrten, Gehwege und Abstellflächen gepflastert, gesamt ca. 200 m²
•10.2021 – Badezimmer im Erdgeschoß saniert
•07.2021 – Reinigung und Versiegelung der Dachfläche
•10.2021 – Installation und Inbetriebnahme der Photovoltaikanlage, 10 kWp, mit Batterie
•10.2022 – Keller- Lüftungsanlage installiert
•10.2022 – Kellerraum saniert
•04.2021 – 03-2023 – Alle Heizkörper ersetzt, Nischen gedämmt
•10.2023 – Abbau der alten Ölheizung, Öltankentsorgung
•11.2023 – Neue Rauchmelder installiert
•11.2023 – Installation und Inbetriebnahme eines redundanten Heizsytems: Luftwasserwärmepumpen, neue Warmwasseraufbereitung, gekoppelt mit Photovoltaikanlage
•08.2024 – Rohrreinigung, Installation einer neuen Rückstauklappe
# Weitere Angaben
Separate WCs: 1
Verfügbar ab: nach Absprache
Objektzustand: modernisiert
Bodenbelag: Parkett
Grundstücksfläche: ca. 1448 m²
# Lagebeschreibung
Die Umgebung von Grevenbroich lädt zu Freizeitaktivitäten im Grünen ein und bietet eine angenehme Wohnqualität. Hier genießen Sie ein gepflegtes Umfeld mit viel Grün, hoher Privatsphäre und dennoch bester Infrastruktur: Einkaufsmöglichkeiten, Schulen, Kindergärten, Ärzte und Apotheken sind in unmittelbarer Nähe. Eine hervorragende Verkehrsanbindung wie naheliegende Bundesstraßen und die Autobahnen (A46, A61 und A540) gelangt man schnell in die umliegenden Städte wie Neuss, Düsseldorf und Köln.
Infrastruktur (im Umkreis von 5 km):
Apotheke, Lebensmittel-Discount, Allgemeinmediziner, Kindergarten, Grundschule, Hauptschule, Gymnasium, Gesamtschule, Öffentliche Verkehrsmittel
# Sonstiges
Heizungsart: Sonstiges (s. Text)
Energieträger: Strom
Grundrisse:
– https://www.ohne-makler.net/immobilie/file/1589715.pdf (Auszug-Bedarfsausweis-Seite_2)
Makleranfragen nicht erwünscht. Nach § 7 UWG sind unaufgeforderte Kontaktaufnahmen durch Makler ohne ausdrückliche Einwilligung des Empfängers verboten!
ohne-makler (OM) ist weder Anbieter noch Vermittler der Immobilie. OM betreibt eine Plattform für Immobilieneigentümer, die unter anderem die gleichzeitige Veröffentlichung einzelner Inserate auf mehreren Immobilienportalen ermöglicht. Die Inhalte dieser Inserate werden ausschließlich von Dritten verantwortet. Für die Richtigkeit, Vollständigkeit oder Rechtmäßigkeit der Angaben übernimmt OM keine Haftung. Hinweise auf mögliche Rechtsverstöße können jederzeit gemeldet werden und werden nach Prüfung umgehend bearbeitet.
# Energie
Energieausweis: Energiebedarfsausweis
Endenergiebedarf: 39 kWh/(m²*a)
Energieeffizienzklasse: A
Wesentliche Energieträger: Elektrisch
Anbieter-Objekt-ID: 418232










