Beschreibung
# Objektbeschreibung
Diese moderne Doppelhaushälfte verbindet zeitgemäßen Wohnkomfort mit einem behaglichen Ambiente – ideal für Menschen die Raum zum Leben, Lachen und Wachsen suchen.
Dieses Haus bietet Ihnen die einmalige Gelegenheit, den Grundriss und die Ausstattung nach Ihren individuellen Wünschen mitzugestalten. Verwirklichen Sie Ihren Traum vom eigenen Zuhause!
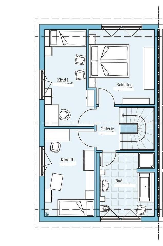
Mit 110 qm auf zwei Etagen und einem durchdachten Grundriss bietet das Haus genügend Platz für Eltern, Kinder und gemeinsame Familienmomente. Helle Räume, ein großzügiger Wohn-Essbereich mit Zugang zum Garten und moderne Architektur schaffen eine Wohlfühlatmosphäre für jedes Alter.
Gelegen in einer der attraktivsten Wohngegenden von Kuppenheim, genießen Sie hier eine ruhige, grüne Umgebung mit bester Anbindung, familienfreundlicher Nachbarschaft und Nähe zu Schulen, Kindergärten und Freizeitmöglichkeiten.
Nutzen Sie diese seltene Gelegenheit, frühzeitig Einfluss auf die Gestaltung Ihres neuen Zuhauses zu nehmen – für ein Haus, das perfekt zu Ihrer Familie passt.
# Ausstattung
Gäste-WC, Fliesen
Bemerkungen:
Dieses Haus wird komplett bezugsfertig erstellt.
Hochwertige Bodenbeläge, moderne Sanitärobjekte und eine energieeffiziente Heizung nach neuestem Standard.
Bitte beachten Sie, dass Stellplätze, Garage und Außenanlage/Garten nicht im Bauumfang enthalten sind, sodass Sie diese nach Ihren eigenen Wünschen und Vorstellungen gestalten können.
Auf Wunsch ist natürlich auch ein Keller möglich!
# Weitere Angaben
Separate WCs: 1
Verfügbar ab: nach Absprache
Bodenbelag: Fliesen, Kunststoff
Grundstücksfläche: ca. 220 m²
# Lagebeschreibung
Das Neubaugebiet in Kuppenheim ist bekannt für seine familienfreundliche Atmosphäre. Spielplätze, Grünflächen und ruhige Straßen sorgen für eine sichere und angenehme Umgebung für Kinder und Eltern.
Trotz der ruhigen Randlage sind Sie in kürzester Zeit in der Natur. Die Umgebung lädt zu ausgedehnten Spaziergängen und Fahrradtouren ein, ideal für Naturliebhaber und Familien, die Wert auf eine naturnahe Lebensweise legen.
Hervorragende Infrastruktur:
Alle wichtigen Einrichtungen wie Schulen, Kindergärten, Einkaufsmöglichkeiten und Ärzte befinden sich in unmittelbarer Nähe. Die Anbindung an den öffentlichen Nahverkehr und die schnelle Erreichbarkeit der Städte Baden-Baden und Rastatt machen Kuppenheim zu einem idealen Wohnstandort.
Hohe Lebensqualität:
Die charmante Stadt Kuppenheim bietet eine hohe Lebensqualität, kombiniert mit einer exzellenten Verkehrsanbindung. Innerhalb weniger Minuten sind Sie auf den Autobahnen A5 und A8, was Pendeln in die umliegenden Städte besonders komfortabel macht.
In Kuppenheim profitieren Sie von einer hervorragenden Infrastruktur. Einkaufsmöglichkeiten, Schulen, Kindergärten und Freizeiteinrichtungen sind schnell erreichbar. Zudem ist die Verkehrsanbindung ideal für Pendler und Reisende.
Kuppenheim ist eine charmante Stadt mit einer hervorragenden Anbindung an das nahegelegene Rastatt und die Region. Die Kombination aus städtischem Komfort und naturnaher Idylle macht diesen Standort besonders attraktiv für alle, die das Beste aus beiden Welten genießen möchten.
Infrastruktur (im Umkreis von 5 km):
Apotheke, Lebensmittel-Discount, Allgemeinmediziner, Kindergarten, Grundschule, Realschule, Öffentliche Verkehrsmittel
# Sonstiges
Heizungsart: Fußbodenheizung
Energieträger: Strom
Energieausweis nicht vorhanden
Planen Sie Ihr neues Zuhause!
Diese Doppelhaushälfte lässt keine Wünsche offen. In einem aufstrebenden und familienfreundlichen Wohngebiet entsteht ein modernes Zuhause, das Ihnen und Ihrer Familie Raum zum Entfalten bietet.
Wir bieten Ihnen die Möglichkeit, die Grundrisse und die Innenausstattung in einem gewissen Rahmen nach Ihren Vorstellungen anzupassen. Schaffen Sie sich Ihr individuelles Traumhaus!
Makleranfragen nicht erwünscht. Nach § 7 UWG sind unaufgeforderte Kontaktaufnahmen durch Makler ohne ausdrückliche Einwilligung des Empfängers verboten!
ohne-makler (OM) ist weder Anbieter noch Vermittler der Immobilie. OM betreibt eine Plattform für Immobilieneigentümer, die unter anderem die gleichzeitige Veröffentlichung einzelner Inserate auf mehreren Immobilienportalen ermöglicht. Die Inhalte dieser Inserate werden ausschließlich von Dritten verantwortet. Für die Richtigkeit, Vollständigkeit oder Rechtmäßigkeit der Angaben übernimmt OM keine Haftung. Hinweise auf mögliche Rechtsverstöße können jederzeit gemeldet werden und werden nach Prüfung umgehend bearbeitet.
# Energie
Heizungsart: Fußbodenheizung
Wesentliche Energieträger: Elektrisch
Anbieter-Objekt-ID: 392230








