PRIVAT Verkauf 1-2 Familienhaus mit viel Platz in ALFELD

$225,000.00

Objektbeschreibung: Change…Preis reduziert Ihr neues Zuhause wartet – Großzügiges 1-2 Familienhaus mit ländlichem Charme in zentraler Lage! Dieses zweistöckige MASSIVhaus (KEIN Fertighaus!!!) ist ideal für Mehrgenerationen wohnen oder als großzügi…

Category:

Beschreibung

# Objektbeschreibung
Change…Preis reduziert

Ihr neues Zuhause wartet – Großzügiges 1-2 Familienhaus mit ländlichem Charme in zentraler Lage!

Dieses zweistöckige MASSIVhaus (KEIN Fertighaus!!!) ist ideal für Mehrgenerationen wohnen oder als großzügiges Einfamilienhaus nutzbar. Es wurde damals als 2 Familienhaus mit 2 Wohnungen gebaut.
Haus mit Mehrwert:
1.Perfekt für die Großfamilie.
2.Wohnen & Einkommen:Ideal zur Kombination von Selbstwohnen und Teilvermietung.
3.Volle Rendite: Komplette Nutzung als Mehrfamilien-/Kapitalanlageobjekt möglich.

Großes Grundstück: Genießen Sie das weitläufige, 1.240 m² große Grundstück mit einem massiv gebauten Gartenhaus, das im Sommer zu einem zusätzlichen Wohnraum wird.

Qualität und Komfort: Das Haus wurde in solider, zweischaliger MASSIV Mauerwerk Bauweise errichtet, was für eine natürliche Dämmung sorgt. Es verfügt überwiegend über Parkettböden und Solarkollektoren helfen beim Stromsparen. Die funktionstüchtige Öl-Zentralheizung ist vorhanden und ein Gasanschluss ist bereits im Haus. Die Heizungsanlage wurde vom Bezirksschornsteinfegermeister abgenommen. Ein Austausch der Anlage ist nicht erforderlich. Diese Information kann gerne fachkundig bestätigt werden !!! Dafür benötigte kontaktdaten können wir gern zusenden.
Bitte beachten Sie: Obwohl wir mit teilweise elektro istalation angefangen haben, das Haus ist unrenoviert und ideal für Käufer, die eigenen Stil und Renovierungsarbeiten einbringen möchten. Bitte beachten Sie, dass wir die Renovierungsstellen mit Brüchen, unverputzten Stellen und Ähnlichem nicht verputzt oder ästhetisch bearbeitet haben. Dies diente dazu, Ihnen einen ungefilterten Einblick in den tatsächlichen Zustand der Mauern und Kabelkanäle zu ermöglichen. Wir haben bewusst auf eine oberflächliche Kaschierung verzichtet.

Großzügige Raumaufteilung:
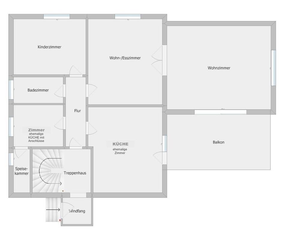
Wohn- und Nutzfläche: Insgesamt ca. 300 Quadratmeter (ca. 180 Quadratmeter Wohnfläche, ca. 120 Quadratmeter Nutzfläche).
Erdgeschoss: Eine Terrasse mit Fernblick, eine geräumige Küche (ca. 20 m²), ein großes Wohn- und Esszimmer (ca. 50 m²), ein Schlafzimmer, ein Gästezimmer und ein Bad mit Fenster.

Obergeschoss: Fünf weitere Zimmer (inkl. ehem. Küche), ein Bad mit Badewanne und ein Balkon.

Keller: Der Wohnkeller bietet zusätzliche Nutzfläche mit zwei großen Zimmern, einem Duschbad und einer Doppelgarage mit zwei Rolltoren.
Die Immobilie ist mit einer vollständigen Drainage rund um das Haus ausgestattet.
Die hochwertige Nolte Nova Lack Küche ist optional zu erwerben: kombiniert hochglänzenden Echtlack der Serie Nova Lack in Blau mit der warmen, natürlichen Ausstrahlung von Echtholzfurnier für einen spannenden Kontrast. Die Arbeitsplatte aus Quarzstein von Stoneless setzt einen edlen und funktionalen Akzent. Besonderes Highlight sind die Nolte Pocket Doors (versenkbare Türen) der Hochschränke. Diese Einschubtüren verschwinden beim Öffnen elegant in seitlichen Nischen (Pockets) des Korpus und sorgen so für eine aufgeräumte, minimalistische Optik und maximale Bewegungsfreiheit, da keine Türen in den Raum ragen.

Hinweis: Die in der einige gezeigten Bilder v. Räumen umfassen Aufnahmen aus der Zeit vor der begonnenen Sanierung.
Keine Maklerprovision: Da es sich um einen Privatverkauf handelt, sparen Sie sich die Maklergebühren.

# Ausstattung
Balkon, Terrasse, Garten, Keller, Vollbad, Duschbad, Einbauküche, Gäste-WC, Parkett, Fliesen, Sonstiges (s. Text)

Bemerkungen:
Die Heizungsanlage wurde vom Bezirksschornsteinfegermeister abgenommen. Ein Austausch der Anlage ist nicht erforderlich. Diese Information kann gerne fachkundig bestätigt werden.

Ebenso freuen wir uns über eine offene und ehrliche Kommunikation von ernsthaften Interessenten. Gerne geben wir Ihnen bei einer Besichtigung Einblick in unsere privaten Räumlichkeiten, in denen wir täglich leben.
Abschließend möchten wir Sie freundlich bitten, uns nach einer Besichtigung kurz mitzuteilen, ob weiterhin Interesse an der Immobilie besteht. Diese Rückmeldung hilft uns sehr in unserer Planung und wir bedanken uns im Voraus für Ihren respektvollen Umgang.

# Weitere Angaben
Separate WCs: 1
Verfügbar ab: nach Absprache
Objektzustand: renovierungsbedürftig
Bodenbelag: Fliesen, Parkett, Kunststoff

Grundstücksfläche: ca. 1240 m²

# Lagebeschreibung
Alfeld Zentrum mit viele Einkaufsmöglichkeiten ist in 15 Gehminuten zu erreichen.
Einkaufsmöglichkeiten, Schulen, Ärzte und öffentliche Verkehrsmittel sind bequem zu erreichen.
Alfeld selbst besticht durch seinen historischen Charme und seine grüne Umgebung.
Infrastruktur (im Umkreis von 5 km):
Apotheke, Lebensmittel-Discount, Allgemeinmediziner, Kindergarten, Grundschule, Hauptschule, Realschule, Gymnasium, Gesamtschule, Öffentliche Verkehrsmittel

# Sonstiges
Heizungsart: Zentralheizung
Energieträger: Öl

Der Kauf eines Hauses im Wert von über 200.000 Euro ist ein wichtiger Schritt, bei dem ein reibungsloser Ablauf entscheidend ist. Vom ersten Gespräch bis zur Schlüsselübergabe legen wir größten Wert auf gewissenhafte Angaben und nachweisbare Fakten. Um Besichtigungstermine effizient koordinieren zu können, bitten wir Interessenten, uns vorab einen Nachweis über die gesicherte Finanzierung (allgemeine Finanzierungsrahmen) zukommen zu lassen. Vielen Dank für Ihr Entgegenkommen.

Ebenso wünschen wir uns von ernsthaften Interessenten eine offene und ehrliche Kommunikation.

Darüber hinaus bitten wir um eine kurze Rückmeldung nach einer Besichtigung, auch wenn kein weiteres Interesse besteht. Leider ist dies nicht immer der Fall!!!
Ein respektvoller Umgang miteinander ist für uns selbstverständlich, da wir Ihnen unsere privaten Räumlichkeiten zeigen, in denen wir täglich leben.
Vielen Dank für Ihr Verständnis.

Makleranfragen nicht erwünscht. Nach § 7 UWG sind unaufgeforderte Kontaktaufnahmen durch Makler ohne ausdrückliche Einwilligung des Empfängers verboten!

ohne-makler (OM) ist weder Anbieter noch Vermittler der Immobilie. OM betreibt eine Plattform für Immobilieneigentümer, die unter anderem die gleichzeitige Veröffentlichung einzelner Inserate auf mehreren Immobilienportalen ermöglicht. Die Inhalte dieser Inserate werden ausschließlich von Dritten verantwortet. Für die Richtigkeit, Vollständigkeit oder Rechtmäßigkeit der Angaben übernimmt OM keine Haftung. Hinweise auf mögliche Rechtsverstöße können jederzeit gemeldet werden und werden nach Prüfung umgehend bearbeitet.

# Energie
Energieausweis: Energieverbrauchsausweis
Energieverbrauch: 250 kWh/(m²*a)
Energieeffizienzklasse: H
Heizungsart: Zentralheizung
Wesentliche Energieträger: Öl

Anbieter-Objekt-ID: 323844