Beschreibung
# Objektbeschreibung
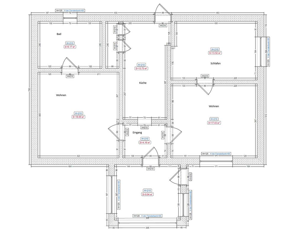
Dieses charmante Haus wurde ca. 1870 erbaut. Es bietet eine sehr gute Substanz und wurde im Laufe der Zeit von einem Zimmermann liebevoll erweitert. Mit seinen 5 Zimmern auf 2 Etagen, bietet es ausreichend Platz für kreative Köpfe.
Ausstattung im Überblick:
– 5 Zimmer verteilt auf 2 Etagen
– kombinierte Gas- und Holzheizung für flexible, effiziente Wärme
– eigene Wasserversorgung zur Gartenbewässerung – nachhaltig und kostensparend
– nicht beheizbarer Zusatzraum für Feiern oder geselliges Beisammensein
– Nebengebäude/Schuppen für Lager, Werkstatt oder Hobby geschlossenes Carport für ein Auto
– Hühnerstall – für ca 4 Hühner
– Kleine Terrasse vor dem Haus- ideal für den Morgenkaffee oder Sundowner
– Direkter Zugang zum angrenzenden Wald – Spaziergänge, Naturerlebnis und Erholung direkt vor der Tür
Gute Infrastruktur ist vorhanden. Es fährt ein Zug bis Berlin – Karow. Eine Busverbindung bis Berlin – Hermsdorf ist ebenso vorhanden. Zu den Autobahnen A 10 sowie A11 sind es ca. 10 km.
Das Haus befindet sich in einer kleinen Seitenstraße in Zühlsdorf und ist von daher sehr ruhig gelegen.
ICH MÖCHTE NICHT DAS SICH HIER MAKLER MELDEN BITTE AKZEPTIEREN SIE DIESES. ES IST NUR FÜR PRIVATE KÄUFER !!!
# Ausstattung
Terrasse, Garten, Keller, Einbauküche, Teppichboden
# Weitere Angaben
Verfügbar ab: sofort
Objektzustand: renovierungsbedürftig
Bodenbelag: Teppich
Grundstücksfläche: ca. 992 m²
# Lagebeschreibung
Das Haus befindet sich in einer kleinen Seitenstraße in Zühlsdorf und ist von daher sehr ruhig gelegen.
Infrastruktur (im Umkreis von 5 km):
Apotheke, Lebensmittel-Discount, Allgemeinmediziner, Kindergarten, Grundschule, Hauptschule, Realschule, Gesamtschule, Öffentliche Verkehrsmittel
# Sonstiges
Heizungsart: Zentralheizung
Energieträger: Gas
Sonstige Unterlagen:
– https://www.ohne-makler.net/immobilie/file/1585525.pdf (Energieausweis)
Makleranfragen nicht erwünscht. Nach § 7 UWG sind unaufgeforderte Kontaktaufnahmen durch Makler ohne ausdrückliche Einwilligung des Empfängers verboten!
ohne-makler (OM) ist weder Anbieter noch Vermittler der Immobilie. OM betreibt eine Plattform für Immobilieneigentümer, die unter anderem die gleichzeitige Veröffentlichung einzelner Inserate auf mehreren Immobilienportalen ermöglicht. Die Inhalte dieser Inserate werden ausschließlich von Dritten verantwortet. Für die Richtigkeit, Vollständigkeit oder Rechtmäßigkeit der Angaben übernimmt OM keine Haftung. Hinweise auf mögliche Rechtsverstöße können jederzeit gemeldet werden und werden nach Prüfung umgehend bearbeitet.
# Energie
Energieausweis: Energiebedarfsausweis
Endenergiebedarf: 478 kWh/(m²*a)
Energieeffizienzklasse: H
Heizungsart: Zentralheizung
Wesentliche Energieträger: Gas
Anbieter-Objekt-ID: 408331























