Beschreibung
# Objektbeschreibung
Diese gepflegte 3-Zimmer-Wohnung im Erdgeschoss eines gepflegten
Mehrfamilienhauses zeichnet sich durch eine ruhige und dennoch
bestens angebundene Lage in Wolfgang aus. Die Bahn-Station Wolfgang ist in
wenigen Gehminuten zu erreichen. Die Wohnung ist ideal für Singles, Paare oder
Familien mit einem Kind, die ohne großen Renovierungsaufwand einziehen möchten,
sowie für Kapitalanleger, die eine nachhaltige Vermietbarkeit suchen.
Die Wohnung ist derzeit für 650€ kalt vermietet.
Die Garage ist separat vermietet.
Vom Hausgeld sind ca. 370€ umlagefähig.
# Ausstattung
Balkon, Keller, Fahrstuhl, Barrierefrei, Laminat, Fliesen
Bemerkungen:
Was Sie erwartet:
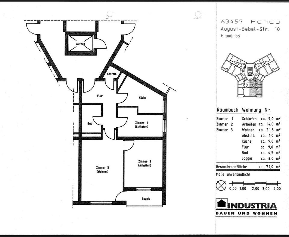
Optimale Raumaufteilung – ca. 71,4 m² Wohnfläche mit separater Küche, gut
geschnittene Zimmer und Balkon
Praktische Abstellkammer in der Wohnung
Abschließbarer Stauraum im Keller und auf dem Dachboden
Tägliche Auszeit im Freien – überdachter Balkon in Süd-Ost-Ausrichtung mit schönem
Blick ins Grüne
Für alle Generationen attraktiv – Erdgeschosswohnung und Aufzug im Haus
vorhanden
Optional kann eine Garage hinzu erworben werden
# Weitere Angaben
Verfügbar ab: nach Absprache
Objektzustand: gepflegt
Bodenbelag: Fliesen, Laminat
Garagen/Stellplatzkaufpreis: 20.000,00 €
# Lagebeschreibung
Die Immobilie befindet sich im
Hanauer Stadtteil Wolfgang, einem
ruhigen und naturnahen Wohngebiet
im Osten der Stadt. Wolfgang ist
bekannt für seine grüne Umgebung
und die Nähe zum weitläufigen
Staatsforst, was den Stadtteil
besonders für Familien und
Naturliebhaber attraktiv macht.
Gleichzeitig bestehen gute
Verkehrsanbindungen: Über die
nahegelegene B43a und die A66
erreicht man sowohl das Hanauer
Zentrum als auch das Rhein-Main-
Gebiet, inklusive Frankfurt am Main, in
kurzer Fahrzeit. Einkaufsmöglichkeiten
für den täglichen Bedarf, Kindergärten
sowie Schulen sind im Stadtteil oder in
den angrenzenden Ortsteilen
vorhanden. Somit verbindet die Lage
eine ruhige Wohnatmosphäre mit
einer guten Infrastruktur und
schneller Erreichbarkeit der
umliegenden Städte.
Infrastruktur (im Umkreis von 5 km):
Apotheke, Lebensmittel-Discount, Allgemeinmediziner, Kindergarten, Grundschule, Hauptschule, Realschule, Gymnasium, Gesamtschule, Öffentliche Verkehrsmittel
# Sonstiges
Heizungsart: Zentralheizung
Energieträger: Gas
Makleranfragen nicht erwünscht. Nach § 7 UWG sind unaufgeforderte Kontaktaufnahmen durch Makler ohne ausdrückliche Einwilligung des Empfängers verboten!
ohne-makler (OM) ist weder Anbieter noch Vermittler der Immobilie. OM betreibt eine Plattform für Immobilieneigentümer, die unter anderem die gleichzeitige Veröffentlichung einzelner Inserate auf mehreren Immobilienportalen ermöglicht. Die Inhalte dieser Inserate werden ausschließlich von Dritten verantwortet. Für die Richtigkeit, Vollständigkeit oder Rechtmäßigkeit der Angaben übernimmt OM keine Haftung. Hinweise auf mögliche Rechtsverstöße können jederzeit gemeldet werden und werden nach Prüfung umgehend bearbeitet.
# Energie
Energieausweis: Energiebedarfsausweis
Endenergiebedarf: 147 kWh/(m²*a)
Heizungsart: Zentralheizung
Wesentliche Energieträger: Gas
Anbieter-Objekt-ID: 419957

























