Beschreibung
# Objektbeschreibung
An nettes Paar oder Einzelperson zu vermieten (1-2 Personen).
Lichtdurchflutete, wunderschöne und klimatisierte 2-Etagenwohnung in gepflegtem 2-Familienhaus in ruhigem Wohngebiet. Die Wohnung ist insgesamt sehr hell und freundlich gestaltet, und vermittelt einen gehobenen Eindruck. Das Haus ist direkt am Naturschutzgebiet, nahe Bürgerpark und Hallenbad gelegen.
Wohnfläche 116qm. Grund-/Nutzfläche gesamt ca. 200qm.
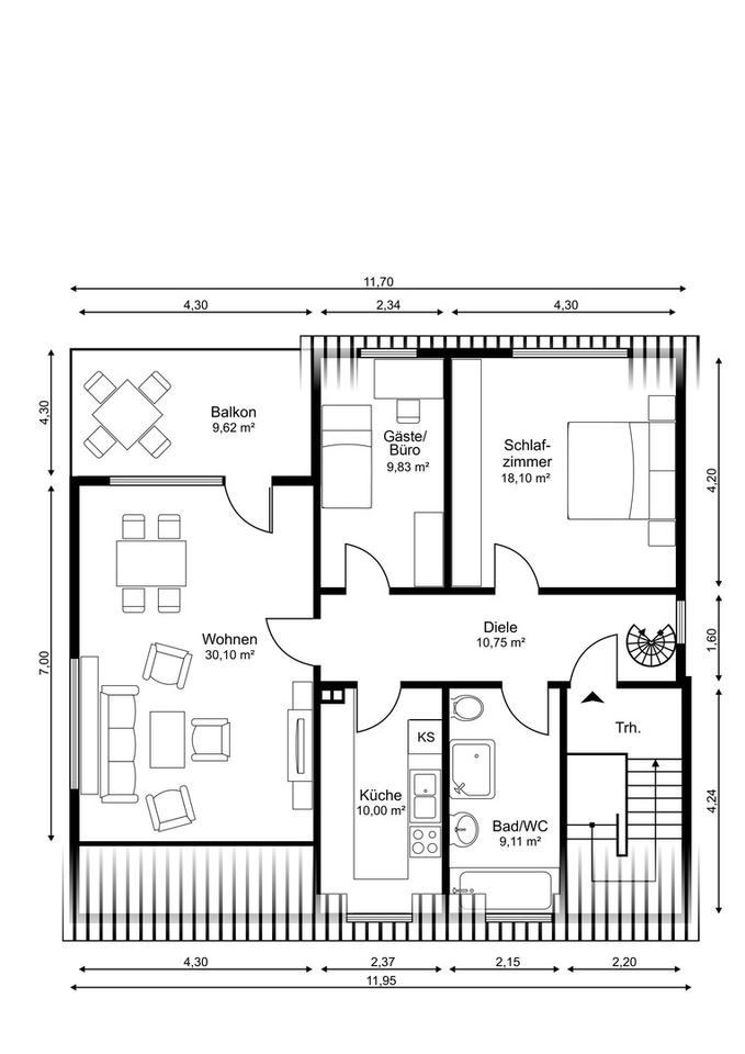
Im Grundgeschoss (90m²) befinden sich ein Schlafzimmer, ein Gäste-/Arbeitszimmer, ein großes Wohnzimmer mit großem Balkon und Blick in den Garten, sowie Küche und ein modernisiertes Tageslicht-Bad.
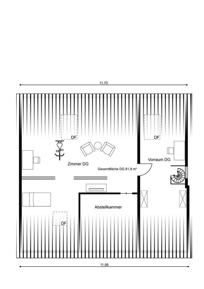
Vom Flur aus erreicht man das sehr große Dachgeschosszimmer (27m² „Wohnfläche“, aber insgesamt 80m² „Grundfläche“) über eine Wendeltreppe. Ideal als Büro-/Hobby- oder Fernsehzimmer nutzbar. Vor dem Dachgeschosszimmer befindet sich ein schöner, heller Vorraum, der weitere Nutzflächen bietet. Im Dachgeschosszimmer steht zudem eine kleine Abstellkammer zur Verfügung.
Das Badezimmer verfügt über neue Möbel, einen neuen Waschtisch, eine moderne, neue Dusche und eine Badewanne.
Ein eigener Kellerraum mit Wasseranschluss und ausreichend Platz für Waschmaschine und Trockner steht ebenfalls zur Verfügung.
Das Haus wurde vor wenigen Jahren saniert und wird seitdem ständig weiter modernisiert.
Ruhiges und gepflegtes Wohnhaus.
Voraussetzung für Mietvertrag:
1. Positive Schufa Auskunft
2. Haushalts-Nettoeinkommen gesamt min. 4.000 Euro
3. 1 bis 2 Personen
# Ausstattung
Balkon, Terrasse, Keller, Vollbad, Duschbad, Parkett, Laminat, Fliesen
Bemerkungen:
Obergeschoss + Dachgeschoss
– Wohn-/Esszimmer (klimatisiert, ca. 30m²) mit hochwertigem Laminat und Zugang zum großen Balkon* mit Blick in den Garten
– Schlafzimmer (klimatisiert, ca. 20m²) mit hochwertigem Laminat
– Gästezimmer (ca. 10m²) mit hochwertigem Laminat
– Tageslichtbad (ca. 10m²), gefliest, modern, mit Badewanne, separate Dusche, WC und Waschtisch
– Küche (ca. 10m²), hell gefliest
– Flur (ca. 10m²) mit neuem Boden
– ausgebautes Dachgeschoss (klimatisiert, ca. 27m² bzw. 80m² Grundfläche) mit Vorraum, Laminat und zusätzlichem Abstellraum
– eigener Keller/Waschküche (ca. 10m²) gefliest
– *Balkon (ca. 10m²), gefliest, teilweise überdacht, Nordseite
Kabel-, Satelliten- und Telefonanschluss, sowie Netzwerkanschlüsse in den Wohnräumen.
4,5 Zimmer mit insgesamt 116m² Wohnfläche zzgl. ~80m² Nutzflächen.
Wohnung wird renoviert übergeben.
Parkett im Untergeschoss wird vor Einzug ersetzt.
# Weitere Angaben
Verfügbar ab: 01.03.2026
Objektzustand: vollständig renoviert
Bodenbelag: Fliesen, Parkett, Laminat
# Lagebeschreibung
Gehobene, sehr ruhige Wohnlage in Dreieich-Sprendlingen, gegenüber Naturschutzgebiet, nahe Buchschlag, Hallenbad und Bürgerpark.
Sehr gute Verkehrsanbindung: gute Anbindung an ÖPNV, wie z.B. Airportbus, 5 Autominuten zum P+R Bahnhof Buchschlag, innerhalb 5-10 Autominuten Anschluss an A3, A5, A661. 15 Autominuten bis zum Flughafen.
Kindergarten, Grundschule, Gesamtschule, Gymnasium und internationale Strothoff-Schule in wenigen Minuten zu Fuß oder mit Fahrrad erreichbar.
Infrastruktur (im Umkreis von 5 km):
Apotheke, Lebensmittel-Discount, Allgemeinmediziner, Kindergarten, Grundschule, Hauptschule, Realschule, Gymnasium, Gesamtschule, Öffentliche Verkehrsmittel
# Sonstiges
Heizungsart: Zentralheizung
Energieträger: Gas
Makleranfragen nicht erwünscht. Nach § 7 UWG sind unaufgeforderte Kontaktaufnahmen durch Makler ohne ausdrückliche Einwilligung des Empfängers verboten!
ohne-makler (OM) ist weder Anbieter noch Vermittler der Immobilie. OM betreibt eine Plattform für Immobilieneigentümer, die unter anderem die gleichzeitige Veröffentlichung einzelner Inserate auf mehreren Immobilienportalen ermöglicht. Die Inhalte dieser Inserate werden ausschließlich von Dritten verantwortet. Für die Richtigkeit, Vollständigkeit oder Rechtmäßigkeit der Angaben übernimmt OM keine Haftung. Hinweise auf mögliche Rechtsverstöße können jederzeit gemeldet werden und werden nach Prüfung umgehend bearbeitet.
# Energie
Energieausweis: Energieverbrauchsausweis
Energieverbrauch: 82 kWh/(m²*a)
Energieeffizienzklasse: B
Baujahr: 1968
Heizungsart: Zentralheizung
Wesentliche Energieträger: Gas
Anbieter-Objekt-ID: 139092



















