Beschreibung
# Objektbeschreibung
Diese hier zur Anmietung angebotene Gewerbefläche befindet sich in einem renovierten Wohn- und Geschäftshaus in Freising-Lerchenfeld und bietet eine repräsentative Schaufensterfront über die gesamte Breite des Verkaufsraums direkt an der Straße. Vor den Gewerbeflächen befinden sich zwei eigene Kundenparkplätze und Abstellmöglichkeiten für Fahrräder.
In den letzten knapp 20 Jahren wurde die gesamte Fläche als Fahrschule genutzt, dies bietet sich aufgrund der angrenzenden Garage auch weiterhin an. Im Gebäude befinden sich zudem seit Jahren ein Friseurgeschäft und ein Verwaltungsbüro. Entsprechend ist für die hier angebotene Fläche auch eine Nutzung als Einzelhandels- oder Bürofläche möglich und gut realisierbar.
Erst im Herbst 2023 wurde das Gebäude mit einer neuen Gas-Zentralheizung mit umweltfreundlicher Solarthermie ausgestattet; dies ermöglicht dauerhaft niedrige Heiz- und Warmwasserkosten. Das Flachdach der Garage wurde 2025 erneuert und die Erneuerung der Ladenfront ist für 2026 im Zuge der Sanierung angedacht. Für schnelles Internet sorgen der bereits im Gebäude vorhandene Glasfaseranschluss der Telekom sowie ein Grundanschluss von Vodafone/Kabel.
# Ausstattung
Fliesen
Bemerkungen:
Die Gewerbefläche wird ab Januar 2026 komplett saniert und kann dabei nach Ihren persönlichen Wünschen ausgebaut und im Grundriss angepasst werden.
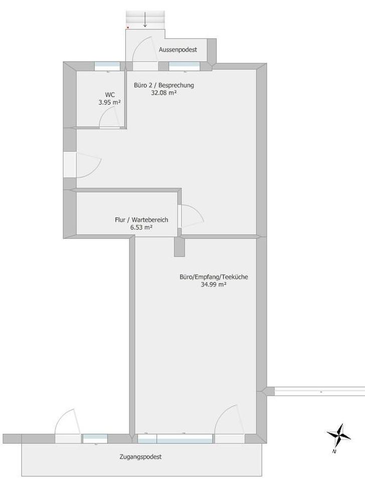
Unter anderem ist der Austausch der Schaufensterfront geplant. Eine räumliche Trennung von Garage und Bürofläche ist für eine getrennte Anmietung möglich; dabei sind Büro- oder Ladenflächen zwischen ca. 80 m² und 110 m² realisierbar.
Die großzügige Garage inkl. rückwärtigem Büro und WC kann separat angemietet werden.
# Weitere Angaben
Verfügbar ab: nach Absprache
Objektzustand: saniert
Bodenbelag: Fliesen, Kunststoff
Warmmiete: 1.100,00 €
Heizkosten: 110,00 €
Bürofläche: ca. 80 m²
# Lagebeschreibung
Das Objekt liegt ruhig aber trotzdem zentral in einer gepflegten Wohnsiedlung in Freising-Lerchenfeld, dem größten Stadtteil Freisings. Seit Jahrzehnten ist das Geschäftshaus im Stadtteil als Einzelhandels- und Fahrschulstandort bekannt. Bis vor 1,5 Jahren war dort auch Jahrzehntelang ein Bäckereiladen untergebracht. Durch seine unmittelbare Nachbarschaft zu Spielplatz, Wohnhäusern, Kindergarten und Grundschule bietet es eine ideale Basis für die Verwirklichung Ihrer Geschäftsidee.
Infrastruktur (im Umkreis von 5 km):
Apotheke, Lebensmittel-Discount, Allgemeinmediziner, Kindergarten, Grundschule, Hauptschule, Realschule, Gymnasium, Gesamtschule, Öffentliche Verkehrsmittel
# Sonstiges
Heizungsart: Zentralheizung
Energieträger: Gas
Die Vermietung erfolgt provisionsfrei, Besichtigungen sind jederzeit nach Absprache möglich.
Garage, Laden- bzw. Büroflächen können gemeinsam oder separat angemietet und individuell im Grundriss gestaltet werden. Einige Grundrissvorschläge finden Sie in dieser Anzeige.
Die angegebene Kaltmiete bezieht sich auf die kleinstmögliche Verkaufs- bzw. Bürofläche und versteht sich zzgl. der gesetzl. Umsatzsteuer. Mietpreis für die Garage mit den beiden angrenzenden Räumen auf Anfrage.
ohne-makler (OM) ist weder Anbieter noch Vermittler der Immobilie. OM betreibt eine Plattform für Immobilieneigentümer, die unter anderem die gleichzeitige Veröffentlichung einzelner Inserate auf mehreren Immobilienportalen ermöglicht. Die Inhalte dieser Inserate werden ausschließlich von Dritten verantwortet. Für die Richtigkeit, Vollständigkeit oder Rechtmäßigkeit der Angaben übernimmt OM keine Haftung. Hinweise auf mögliche Rechtsverstöße können jederzeit gemeldet werden und werden nach Prüfung umgehend bearbeitet.
# Energie
Energieausweis: Energieverbrauchsausweis
Endenergieverbrauch Strom: 197 kWh/(m²*a)
Endenergieverbrauch Wärme: 220 kWh/(m²*a)
Heizungsart: Zentralheizung
Wesentliche Energieträger: Gas
Anbieter-Objekt-ID: 391860














