Beschreibung
# Objektbeschreibung
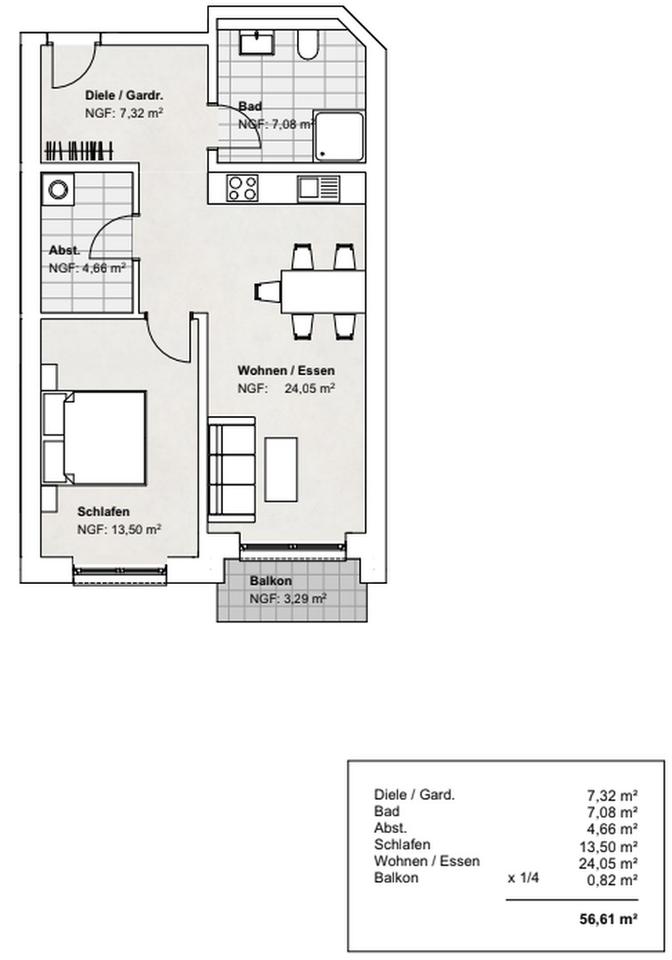
Wohnung 4 – exklusiv, großzügig, lichtdurchflutet
Das Neubauprojekt bietet modernen Wohnraum mit hoher Aufenthaltsqualität. Jede Wohnung verfügt über einen offenen Wohn- und Essbereich mit angrenzender Küche, ein modernes Bad mit Dusche oder Badewanne sowie ein separates Schlafzimmer. Zusätzlich steht Ihnen ein praktischer Abstellraum innerhalb der Wohnung zur Verfügung – ein echtes Plus für Alltag und Ordnung.
Die Wohnungen liegen im 1. und 2. Obergeschoss und verfügen über großzügige Balkone, die nach Südwesten ausgerichtet sind – ideal zum Entspannen im Grünen.
Dank der barrierearmen Gestaltung, des Aufzugs im Haus und der schwellenarmen Zugänge eignet sich das Objekt auch ideal für ältere Menschen oder Menschen mit eingeschränkter Mobilität. Die Ausstattung ist modern, pflegeleicht und auf ein angenehmes Wohnklima ausgerichtet.
Im Außenbereich sorgen gepflegte Wege, überwiegend überdachte Stellplätze mit einer vorbereiteten Infrastruktur für E-Mobilität für zusätzlichen Komfort und Nachhaltigkeit.
# Ausstattung
Terrasse, Fahrstuhl, Vollbad
Bemerkungen:
Helle Räume mit modernen Grundrissen
Barrierearme Zugänge und Aufzug im Haus
Modernes Bad mit Dusche oder Wanne
Abstellraum innerhalb der Wohnung
Erstbezug, hochwertige Boden- und Wandbeläge
Fußbodenheizung
# Weitere Angaben
Verfügbar ab: 01.03.2026
Objektzustand: Erstbezug
# Lagebeschreibung
Fümmelse liegt nur wenige Fahrminuten vom Zentrum Wolfenbüttels entfernt und bietet gleichzeitig alle Vorteile eines ruhigen Wohnumfelds. Der Ort ist geprägt von Einfamilienhäusern, kleinen Mehrfamilienhäusern und einer freundlichen Nachbarschaft – optimal für Familien mit Kindern und für Menschen, die ihren Ruhestand in angenehmer Atmosphäre verbringen möchten.
Alle wichtigen Einrichtungen befinden sich in unmittelbarer Umgebung:
– Eine Grundschule ist in wenigen Gehminuten erreichbar
– Kindergarten und eine Tagespflegeeinrichtung des ASB befinden sich direkt in der Nachbarschaft
– Ein Spielplatz liegt gegenüber der Immobilie – perfekt für junge Familien
-Einkaufsmöglichkeiten, Ärzte und weitere Dienstleister sind schnell erreichbar
– Sehr gute Anbindung an die Innenstadt Wolfenbüttels und die B79
In Fümmelse finden Sie eine ruhige Wohnlage mit allen Vorzügen der Nähe zur Stadt – eingebettet in eine grüne Umgebung mit viel Lebensqualität.
Infrastruktur (im Umkreis von 5 km):
Apotheke, Lebensmittel-Discount, Allgemeinmediziner, Kindergarten, Grundschule, Öffentliche Verkehrsmittel
# Sonstiges
Heizungsart: Fußbodenheizung
Energieausweis nicht vorhanden
Interessiert? Wir senden Ihnen gern ein ausführliches Exposé mit allen Informationen zu Wohnung, Grundriss und Mietkonditionen zu – schreiben Sie uns einfach eine kurze Nachricht.
Makleranfragen nicht erwünscht. Nach § 7 UWG sind unaufgeforderte Kontaktaufnahmen durch Makler ohne ausdrückliche Einwilligung des Empfängers verboten!
ohne-makler (OM) ist weder Anbieter noch Vermittler der Immobilie. OM betreibt eine Plattform für Immobilieneigentümer, die unter anderem die gleichzeitige Veröffentlichung einzelner Inserate auf mehreren Immobilienportalen ermöglicht. Die Inhalte dieser Inserate werden ausschließlich von Dritten verantwortet. Für die Richtigkeit, Vollständigkeit oder Rechtmäßigkeit der Angaben übernimmt OM keine Haftung. Hinweise auf mögliche Rechtsverstöße können jederzeit gemeldet werden und werden nach Prüfung umgehend bearbeitet.
# Energie
Baujahr: 2025
Heizungsart: Fußbodenheizung
Anbieter-Objekt-ID: 370656









