Beschreibung
# Objektbeschreibung
Die Wohnung ist Teil eines KFW 40 Neubaus mit 4 Wohneinheiten und befindet sich in einer kleinen Sackgasse umgeben von Feldern, einer Pferdekoppel bei gleichzeitiger Nähe zum Langenhorn Markt.
Als großzügig gestaltete Wohnung erstreckt sich über 2 Etagen und bietet zahlreichen gestaltungsspielraum. Mit 2 Bädern, eines davon als Vollbad, 2 Eingängen, eigenem Gartenhaus und zusätzlichem Zugang zum Garten aus dem Schlafzimmer, fühlt sich diese Wohnung mehr wie ein Haus an, als eine Wohnung.
Die geräumige Terrasse mit großer Glas-Schiebetür und flacher Schwelle bietet einen perfekten Ausblick in den 650m² großen Garten zur alleinigen Nutzung.
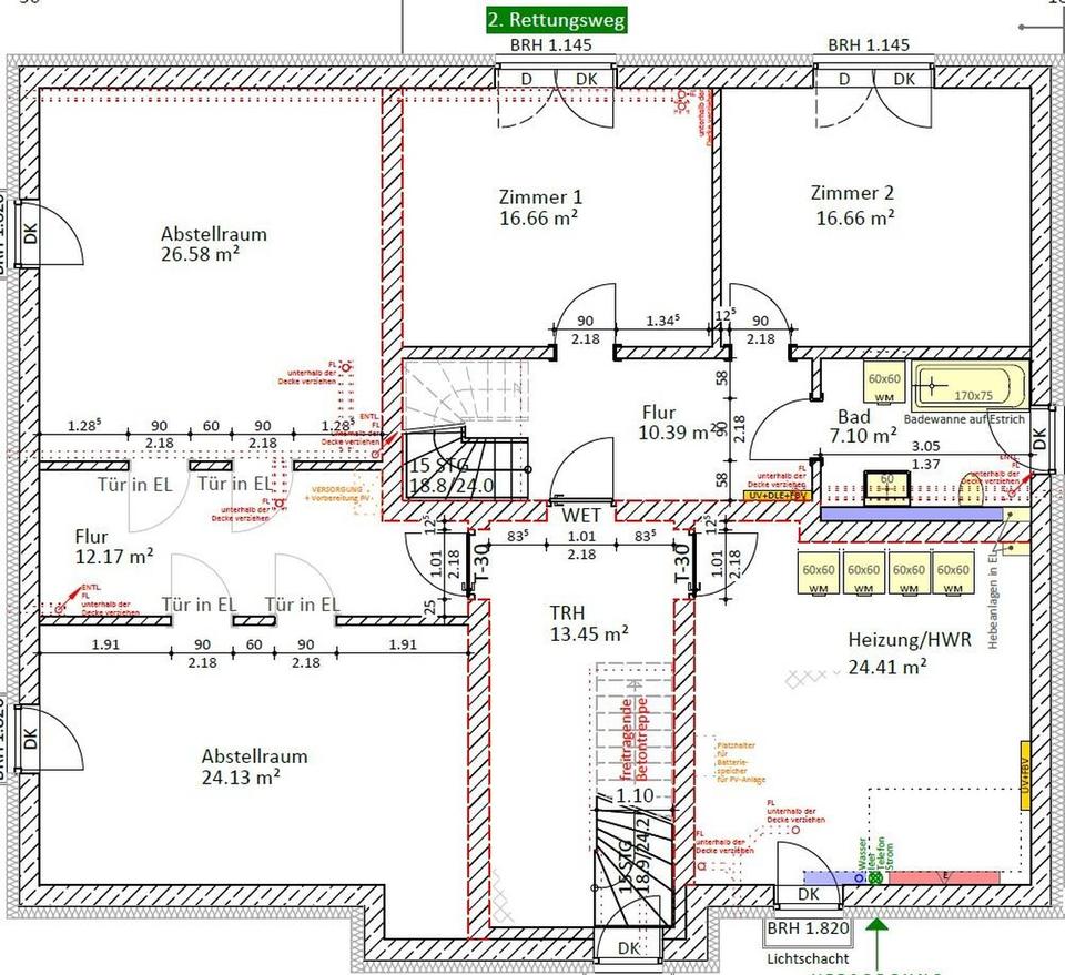
In den 5 Zimmern der 141m² Wohnung ist ausreichen Platz und Stellfläche, für zusätzlichen Stauraum gibt es im Keller ein eigenes 12m² großes Kellerabteil. Ebenfalls befindet sich die Waschmaschine im Keller, der selbstverständlich verputzt und mit einer Fußbodenheizung ausgestattet ist. Die gesamte Haustechnik, von Wärmepumpe bis Photovoltaik befindet sich ebenfalls im Keller. Zusätzlich rundet ein 20m² Fahrradhaus die Möglichkeiten der Unterbringung ab.
Generell ist die Wohnung mit hochwertigen Materialien und namenhaften Herstellern ausgestattet. Von der Einbauküche, inkl. Induktions-Einbauherd und Geschirrspüler, über die Bodentiefe 90x120cm Dusche bis hin zur Elektro Ausstattung mit LAN, TV und WLAN Accesspoint, sollten alle Anforderungen übertroffen sein.
Die 2 Badezimmer sind mit großen, unterschiedlichen 60x60cm Bodenfliesen ausgestattet, im Rest der Wohnung liegt hochwertiges Vinyl in Holzoptik. Muster sind bereits vorhanden, die bei einer Besichtigung einen guten Eindruck über den finalen Zustand vermitteln können.
Wir vermieten von privat und hoffen eine tolle langfristige Hausgemeinschaft zu finden. Auf Wunsch kann gerne der PV-Strom über das „Mieterstrom“ Modell günstig und direkt bezogen werden. Auch eine Vermietung als Komplettpaket, inkl. Strom und Internet ist technisch möglich, sofern gewünscht.
# Ausstattung
Terrasse, Garten, Keller, Vollbad, Duschbad, Einbauküche, Barrierefrei, Fliesen
Bemerkungen:
Terrasse, Garten, Duschbad, Vollbad, Einbauküche, Fliesen, Keller
Bemerkungen:
Neubau, gehobene Ausstattung
– Markeneinbauküche, Induktionskochfeld, Ofen, Geschirrspüler
– Vinyl: 20x120cm in Holzdielenoptik
– Fiesen im Bad: 60x60cm Anthrazit, Sand
– Fußbodenheizung in der gesamten Wohnung und im Keller
– KFW 40, geringe Heizkosten
– 3-fach verglaste Türen/Fenster bzw. Schallschutzfenster in den Schlafräumen
– Markenbadausstattung, bodenebene Dusche, Badewanne
– Wasser Entkalkungsanlage
– 2 Stellplätze für 4 Wohnungen zum Teilen und mit Wallbox (E-Auto Anschluss)
– 48m² Terrasse mit flachem Ausstieg
– Mögliche Nutzung des Stroms der 16KWp PV-Anlage
Die EG Wohnung bietet mit ca. 650m² Garten und den 2 Stockwerken eine Wohnung mit Haus-Charakter.
# Weitere Angaben
Verfügbar ab: 15.04.2026
Objektzustand: Erstbezug
Bodenbelag: Fliesen, Kunststoff
# Lagebeschreibung
Die angebotene Neubau-Wohnung (Baujahr 2026) liegt in einer verkehrsberuhigten Sackgasse mit einer einmaligen Lage mit Blick ins Grüne.
Die unmittelbare Umgebung wird durch eine Bebauung mit Einfamilienhäusern auf großzügigen Grundstücken geprägt.
Hervorzuheben ist die unmittelbare ruhige Lage direkt an einer Pferdekoppel.
Die Lage des Hauses bietet eine hervorragende Infrastruktur, die als optimal bezeichnet werden kann: Das bekannte und neu gestaltete Einkaufszentrum Langenhorn Markt liegt nur wenige Minuten zu Fuß entfernt. Hier finden Sie ein umfangreiches Angebot an Einkaufsmöglichkeiten, Banken, Ärzte, Apotheken, Bäckereien, Restaurants und viele weitere Dienstleistungen.
Außerdem können Sie mit der U1 Station Hamburg Langenhorn Markt in ca. 15 Minuten in die Hamburger Innenstadt gelangen. Oder Sie nutzen eine der diversen Buslinien, die Sie in die umliegenden Ortsteile wie Fuhlsbüttel, Niendorf, Poppenbüttel oder Hummelsbüttel bringen.
Mit dem Auto sind Sie in etwa 10 Minuten auf der A7 AS Schnelsen-Nord.
Schöne Naherholungsgebiete stellen einen hohen Freizeitwert dar und lassen das Wohnen in Hamburg Langenhorn zentral, aber doch im Grünen sein.
– ruhige Wohnlage im attraktiven Langenhorn
– öffentliche Verkehrsmittel befinden sich im nahen Umfeld und sind fußläufig gut erreichbar. Überdurchschnittlich gute Anbindung
– in ca. 15 Minuten mit der U-Bahn in die Innenstadt
– reichhaltiges Angebot an diversen Geschäften, alles für den täglichen Bedarf auf kurzem Weg zu erledigen Langenhorn Markt 5 min zu Fuß oder Alstertaler Einkaufszentrum in 15 min mit dem Auto
Infrastruktur (im Umkreis von 5 km):
Apotheke, Lebensmittel-Discount, Allgemeinmediziner, Kindergarten, Grundschule, Realschule, Gymnasium, Gesamtschule, Öffentliche Verkehrsmittel, Flughafen
Infrastruktur (im Umkreis von 5 km):
Apotheke, Lebensmittel-Discount, Allgemeinmediziner, Kindergarten, Grundschule, Gymnasium, Gesamtschule, Öffentliche Verkehrsmittel
# Sonstiges
Heizungsart: Zentralheizung
Energieträger: Luft-/Wasserwärme
Der genaue Mietbeginn wird rechtzeitig abgesprochen, aber aufgrund der Unvorhersehbarkeiten bei einem Neubau erst Vertraglich 8 Wochen vorher festgelegt.
Wir gehen derzeit vom 15.04.2026 aus und hoffen jemanden zu finden, der die Vorteile eines Neubaus zu schätzen weiß und gleichzeitig die Unplanbarkeit akzeptieren kann.
Für telefonische Anfragen oder Vereinbarung von Besichtigungsterminen nutzen Sie gerne 01743000675.
ohne-makler (OM) ist weder Anbieter noch Vermittler der Immobilie. OM betreibt eine Plattform für Immobilieneigentümer, die unter anderem die gleichzeitige Veröffentlichung einzelner Inserate auf mehreren Immobilienportalen ermöglicht. Die Inhalte dieser Inserate werden ausschließlich von Dritten verantwortet. Für die Richtigkeit, Vollständigkeit oder Rechtmäßigkeit der Angaben übernimmt OM keine Haftung. Hinweise auf mögliche Rechtsverstöße können jederzeit gemeldet werden und werden nach Prüfung umgehend bearbeitet.
# Energie
Energieausweis: Energiebedarfsausweis
Endenergiebedarf: 22 kWh/(m²*a)
Energieeffizienzklasse: A+
Baujahr: 2026
Heizungsart: Zentralheizung
Wesentliche Energieträger: Wärmepumpe Luft-Wasser
Anbieter-Objekt-ID: 417204











