Beschreibung
# Objektbeschreibung
Objektbeschreibung
Zum Verkauf steht ein Paket von sechs vermieteten Eigentumswohnungen in einem Mehrfamilienhaus.
Das gut gepflegte Haus wurde 1994 bezugsfertig, die Gas-Zentralheizung 2016 erneuert. Warmwasser über Durchlauferhitzer (im Energieausweis mit eingerechnet).
Voll vermietet, Jahresnettokaltmiete derzeit 52.832 €. Die Mieten können zu Dezember 2026 auf 60.757 € erhöht werden.
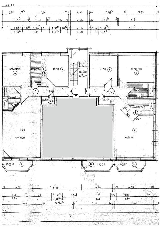
Raumaufteilung
Die Wohnungen haben Wohnflächen von ca. 82 m2 (4 x) sowie ca. 76 m2 (2 x). Alles sind 3 Zimmer-Wohnungen mit Küche, Bad, Abstellkammer, Flur, und einem Kellerraum. (Je zwei Wohnungen von jedem der gezeigten Grundrisse, z.T. gespiegelt.)
Zum Schutz der Privatsphäre der Mieter zeigen die Fotos eine ähnlich ausgestattete Wohnungen im selben Haus kürzlich beim letzten Wechsel.
Die Bäder und Küchen sind gefliest, die übrigen Räume je nach Wohnung mit Laminat oder Teppichboden ausgelegt. Die Wohnungen sind Nord-Süd-ausgerichtet, die giebelseitigen Wohnungen zusätzlich nach Westen bzw. nach Osten. Alle bis auf die beiden kleineren Wohnungen, die im Dachgeschoss liegen, haben nach Süden einen Balkon.
Weitere Wohnungen in derselben Wohnungseigentümergemeinschaft können zusätzlich erworben werden.
Courtagefrei von privat.
# Weitere Angaben
Verfügbar ab: nach Absprache
Objektzustand: gepflegt
Gesamtfläche: ca. 480,34 m²
# Lagebeschreibung
Ruhige Lage an einer Fahrradstraße in Bergedorf
# Sonstiges
Heizungsart: Zentralheizung
Energieträger: Gas
Makleranfragen nicht erwünscht. Nach § 7 UWG sind unaufgeforderte Kontaktaufnahmen durch Makler ohne ausdrückliche Einwilligung des Empfängers verboten!
ohne-makler (OM) ist weder Anbieter noch Vermittler der Immobilie. OM betreibt eine Plattform für Immobilieneigentümer, die unter anderem die gleichzeitige Veröffentlichung einzelner Inserate auf mehreren Immobilienportalen ermöglicht. Die Inhalte dieser Inserate werden ausschließlich von Dritten verantwortet. Für die Richtigkeit, Vollständigkeit oder Rechtmäßigkeit der Angaben übernimmt OM keine Haftung. Hinweise auf mögliche Rechtsverstöße können jederzeit gemeldet werden und werden nach Prüfung umgehend bearbeitet.
# Energie
Energieausweis: Energieverbrauchsausweis
Energieverbrauch: 89 kWh(m²*a)
Energieeffizienzklasse: C
Heizungsart: Zentralheizung
Wesentliche Energieträger: Gas
Anbieter-Objekt-ID: 402212

















