Beschreibung
# Objektbeschreibung
Attraktives, modern saniertes Gewerbeobjekt in Zittau – vielseitig nutzbar, top ausgestattet
Objektadresse:
Löbauer Straße 1a, 02763 Zittau
Objektbeschreibung:
Bei diesem Angebot handelt es sich um ein hochwertig saniertes und äußerst gepflegtes Gewerbeobjekt mit Büro-, Verkaufs- und Lagerflächen auf einem großzügig angelegten Grundstück. Die Sanierung erfolgte ca. 2016 und umfasst sämtliche baulichen und technischen Bereiche – das Objekt befindet sich in einem einzugsbereiten Zustand.
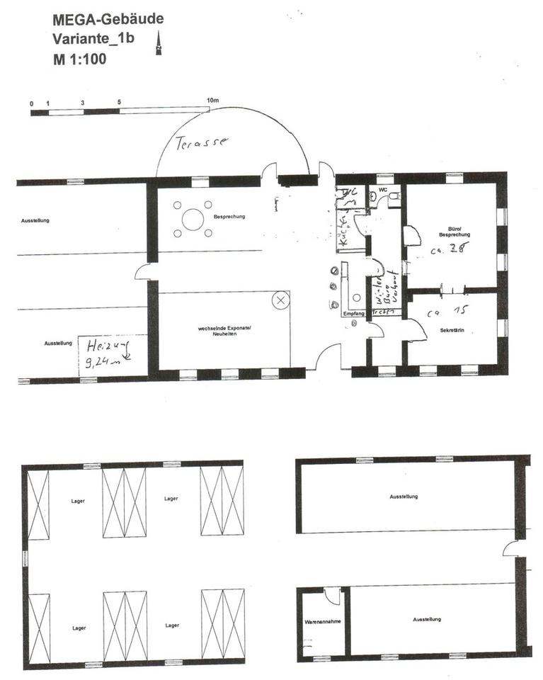
Bürogebäude (ca. 250 m² Nutzfläche):
Zwei Einzelbüros (ca. 25 m² und 20 m²) mit edlem Teakholzfußboden
Großzügiger, heller Hauptraum mit ca. 180 m², ideal nutzbar als Verkaufsraum, Großraumbüro oder Showroom
– ausgestattet mit Sichtbetonfußboden, versiegelt mit Epoxidharz
Kleine Teeküche
Zwei separate WCs
Neue Fenster und Dach
Deckenverkleidung aus hochwertiger Lärche
Zugang zu einem kleinen Dachboden
Heizung über moderne Gas-Brennwerttherme
Elektrik vollständig erneuert, inkl. Kraftstromanschlüssen
Internet- und Wasseranschlüsse vorhanden
Anliegende Halle (ca. 350 m²):
Direkt an das Bürogebäude angrenzend
Außenfassade mit Lärchen-Rhombusleisten verkleidet
Boden gepflastert
Ideal nutzbar als Werkstatt, Lager oder Präsentationsfläche
Weitere Nebengebäude:
Offene Lagerhalle mit ca. 120 m²
Zweite Halle mit ca. 250 m² Nutzfläche auf dem Grundstück
Drei Einzelgaragen
Große überdachte Unterstellfläche (ca. 30 m x 6 m), z. B. für Fahrzeuge, Anhänger oder Materiallager
Grundstück:
Teilweise begrünt, ideal als Ausstellungsfläche oder repräsentativer Vorbereich
Größtenteils befestigt mit Pflaster und Mineralgemisch
Großzügige Zufahrt und gute Rangiermöglichkeiten
Besonderheiten:
Komplett saniert ca. 2016
Moderne und hochwertige Ausstattung
Flexible Nutzungsmöglichkeiten: Verkauf, Büro, Lager, Werkstatt, Ausstellung
Repräsentativer Gesamteindruck – ideal für Gewerbetreibende mit Anspruch
# Ausstattung
Garten, Sonstiges (s. Text)
Bemerkungen:
Opis nieruchomości
Oferowana nieruchomość to wysokiej klasy, gruntownie wyremontowany i bardzo zadbany obiekt komercyjny z powierzchniami biurowymi, handlowymi i magazynowymi, usytuowany na przestronnej działce. Remont przeprowadzono około 2016 roku i objął wszystkie elementy budowlane i techniczne – obiekt jest gotowy do natychmiastowego użytkowania.
Budynek biurowy (ok. 250 m² powierzchni użytkowej):
Dwa osobne biura (ok. 25 m² i 20 m²) z elegancką podłogą z drewna tekowego
Przestronny, jasny główny pokój o powierzchni ok. 180 m² – idealny jako sala sprzedaży, biuro typu open space lub showroom
– podłoga z betonu architektonicznego, zabezpieczona żywicą epoksydową
Mała kuchnia
Dwie oddzielne toalety
Nowe okna i dach
Sufit wykończony wysokiej jakości drewnem modrzewiowym
Dostęp do małego strychu
Ogrzewanie nowoczesnym kotłem gazowym kondensacyjnym
Całkowicie nowa instalacja elektryczna, w tym przyłącza siłowe
Dostęp do internetu i wody
Hala przylegająca (ok. 350 m²):
Bezpośrednio połączona z budynkiem biurowym
Elewacja zewnętrzna wykończona listwami modrzewiowymi
Nawierzchnia wyłożona kostką brukową
Idealna na warsztat, magazyn lub powierzchnię wystawienniczą
Dodatkowe budynki:
Otwarta hala magazynowa ok. 120 m²
Druga hala magazynowa ok. 250 m²
Trzy oddzielne garaże
Duże zadaszone miejsce postojowe (ok. 30 m x 6 m) – np. na pojazdy, przyczepy lub składowanie materiałów
Działka:
Częściowo zazieleniona – idealna na powierzchnie wystawiennicze lub reprezentacyjne
W większości utwardzona (kostka brukowa i tłuczeń)
Szeroki wjazd i bardzo dobre możliwości manewrowania
Cechy szczególne:
Kompletny remont ok. 2016 r.
Nowoczesne, wysokiej jakości wyposażenie
Elastyczne możliwości wykorzystania: sprzedaż, biuro, magazyn, warsztat, wystawy
Reprezentacyjny wygląd – idealny dla wymagających przedsiębiorców
Informacje dotyczące najmu / zakupu:
Nieruchomość oferowana jest w atrakcyjnej i uczciwej cenie najmu. Dzięki elastycznemu układowi budynków i osobnym wejściom istnieje możliwość wynajmu częściowego, np. tylko biura, wybranej hali lub magazynu – odpowiednie zarówno dla małych firm, jak i przedsiębiorstw potrzebujących większej powierzchni.
Na życzenie możliwy jest również zakup całej nieruchomości. Właściciel jest otwarty na różne koncepcje użytkowania i zaprasza do bezpośredniego kontaktu w celu omówienia szczegółów.
Kontakt (PL/CZ/UA): +49 163 2795 120
# Weitere Angaben
Verfügbar ab: 01.03.2026
Objektzustand: gepflegt
Heizkosten: 400,00 €
Grundstücksfläche: ca. 6000 m²
Lagerfläche: ca. 670 m²
# Lagebeschreibung
Das Gewerbeobjekt befindet sich in sehr gut sichtbarer Lage direkt an der Löbauer Straße (B 96) – einer der meistbefahrenen Verkehrsachsen Zittaus. Diese Bundesstraße verbindet das Zittauer Stadtzentrum mit dem nördlichen Umland und ist täglich stark frequentiert.
Die hohe Verkehrsfrequenz sorgt für eine ausgezeichnete Sichtbarkeit und Werbewirkung, was die Lage insbesondere für kundenorientierte Gewerbeformen, Ausstellung, Handel oder Dienstleistungen äußerst attraktiv macht.
Großzügige Flächen vor dem Objekt ermöglichen eine bequeme Anfahrt und ausreichend Stellplätze, auch für Lieferverkehr oder größere Fahrzeuge.
Die Umgebung ist geprägt von einer gesunden Mischung aus Gewerbe und Wohnbebauung, mit zahlreichen Einzelhändlern, Werkstätten, Autohäusern und Dienstleistungsunternehmen. Das sorgt für eine lebendige, gewerblich geprägte Nachbarschaft mit hoher Kundenfrequenz.
Ein besonderes Highlight ist die Möglichkeit, den angrenzenden Park am Löbauer Platz, der sich durch seine markante alte Eiche auszeichnet, optional dazuzumieten. Diese Fläche eignet sich ideal als Erweiterung für Außenausstellungen, Veranstaltungen oder repräsentative Zwecke und verleiht dem Gesamtobjekt eine zusätzliche visuelle Präsenz im Stadtbild.
Das Stadtzentrum von Zittau ist in wenigen Minuten erreichbar, ebenso wie die B178, die weiter in Richtung Löbau, Bautzen und Görlitz führt. Damit bietet der Standort auch logistisch eine sehr gute Anbindung im Dreiländereck Deutschland–Polen–Tschechien.
Lokalizacja:
Nieruchomość znajduje się w doskonale widocznej lokalizacji przy Löbauer Straße (droga krajowa B96) – jednej z głównych i najczęściej uczęszczanych arterii w Żytawie. Droga ta łączy centrum miasta z północnymi przedmieściami i codziennie jest intensywnie uczęszczana przez ruch lokalny i tranzytowy.
Wysokie natężenie ruchu zapewnia doskonałą widoczność oraz duży potencjał reklamowy – szczególnie dla firm nastawionych na klientów, sprzedaż, ekspozycje czy usługi.
Przestronne place przed budynkiem umożliwiają wygodny dojazd i wiele miejsc parkingowych – również dla większych pojazdów i dostaw.
Otoczenie to zdrowa mieszanka firm handlowych, warsztatów, salonów samochodowych i usługodawców – co sprzyja ożywionej działalności gospodarczej i stałemu napływowi klientów.
Dodatkową atrakcją jest możliwość wynajęcia przyległego parku przy placu Löbauer, wyróżniającego się charakterystycznym, starym dębem. Powierzchnia ta idealnie nadaje się do celów wystawowych, eventów lub reprezentacyjnych i znacznie zwiększa widoczność obiektu w przestrzeni miejskiej.
Centrum Żytawy oddalone jest o kilka minut jazdy, podobnie jak droga B178, prowadząca dalej w kierunku Löbau, Budziszyna i Görlitz. Lokalizacja zapewnia doskonałe połączenia w trójkącie granicznym Niemcy–Polska–Czechy.
Infrastruktur (im Umkreis von 5 km):
Apotheke, Lebensmittel-Discount, Allgemeinmediziner, Kindergarten, Grundschule, Hauptschule, Realschule, Gymnasium, Gesamtschule, Öffentliche Verkehrsmittel
# Sonstiges
Heizungsart: Etagenheizung
Energieträger: Gas
Hinweis zur Vermietung / Kaufoption
Das Objekt wird zu einem attraktiven und fairen Mietpreis angeboten. Aufgrund der flexiblen Gebäudestruktur und der separaten Zugänge ist auch eine Teilvermietung einzelner Bereiche möglich – etwa nur das Bürogebäude, einzelne Hallen oder Lagerflächen. Damit eignet sich das Objekt sowohl für kleinere Gewerbetreibende als auch für Unternehmen mit größerem Flächenbedarf.
Ebenso ist nach Absprache auch ein Kauf des gesamten Anwesens denkbar. Der Eigentümer zeigt sich offen für verschiedene Nutzungskonzepte und freut sich über direkte Anfragen und individuelle Absprachen.
Interessenten wenden sich bitte direkt an:
0163 / 3821896
Makleranfragen nicht erwünscht. Nach § 7 UWG sind unaufgeforderte Kontaktaufnahmen durch Makler ohne ausdrückliche Einwilligung des Empfängers verboten!
ohne-makler (OM) ist weder Anbieter noch Vermittler der Immobilie. OM betreibt eine Plattform für Immobilieneigentümer, die unter anderem die gleichzeitige Veröffentlichung einzelner Inserate auf mehreren Immobilienportalen ermöglicht. Die Inhalte dieser Inserate werden ausschließlich von Dritten verantwortet. Für die Richtigkeit, Vollständigkeit oder Rechtmäßigkeit der Angaben übernimmt OM keine Haftung. Hinweise auf mögliche Rechtsverstöße können jederzeit gemeldet werden und werden nach Prüfung umgehend bearbeitet.
# Energie
Heizungsart: Etagenheizung
Wesentliche Energieträger: Gas
Anbieter-Objekt-ID: 361661




































