Beschreibung
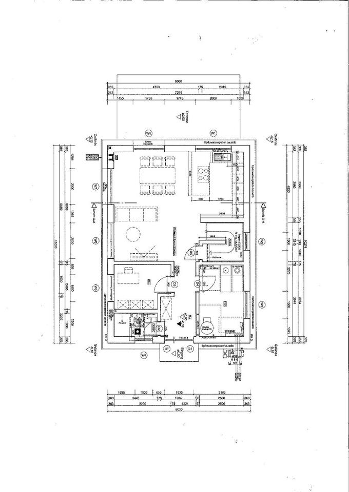
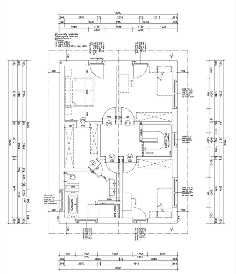
# Objektbeschreibung
Im schönen Burkersdorf nahe Weida entstehen 5 KFW40+ Einfamilienhäuser. Das moderne und lichtdurchflutete Raumkonzept sorgt für beste Lebensqualität und lädt zum entspannen ein.
# Ausstattung
Terrasse, Garten, Vollbad, Duschbad, Einbauküche, Gäste-WC, Laminat, Fliesen
Bemerkungen:
– Zentrale Wohnraumlüftung
– offenes Wohnzimmer mit U-Einbauküche inkl. Tresen
und Elektrogeräte (Kühl-Gefrierkombination,
Ceranfeld, E-Herd, Mikrowelle)
– Eichenvinylboden mit Sockelleiste flach/weiß
– Eichentreppe mit Edelstahlgeländer
– CPL Innentüren karo white mit Edelstahlbeschlägen
– Fußbodenheizung mit Raumthermostat
– Haidl Alu Eingangstür anthrazit
– Haidl Kunststoff/Alu Fenster
– 3 fach Wärmeschutz und Schallverglasung
– innen weiß/außen anthrazit
– Photovaltaikanlage 5 kWP inkl. Batteriespeicher
– Terrasse am Wohnzimmer mit angrenzendem Garten
– Terrassenplatten RINN Silva RSF 5 Beschichtung
– Einfassung und Stufen in anthrazit
– Limex Drainfugenpflaster – Hans Fuchs –
– Außenputz weiß
– Trendlinerelemente aus Lärchenholz
-großzügige Zapf Fertigteildoppelgarage mit elektrischem Sektionaltor, Fenster und separater zuzüglich 2 Außenstellplätzen
Zugangstür 6x6m
– Mülltonnenbox 3-fach 240ltr
– Telefonanschluss mit einer Bandbreite von 50MBit/s (Glasfaser bereits vorgerüstet)
# Weitere Angaben
Separate WCs: 1
Verfügbar ab: 01.04.2026
Objektzustand: neuwertig
Bodenbelag: Fliesen, Laminat
Grundstücksfläche: ca. 520 m²
# Lagebeschreibung
Burkersdorf ist ein Ortsteil der Gemeinde Harth-Pöllnitz im Landkreis Greiz im Osten Thüringens. Hier leben 460 Einwohner (Stand 2022).
Die schöne Ortschaft liegt an der B175 und ist unmittelbar über die A4 und A9 Abfahrt Gera/Greiz/Weida erreichbar. 3 km in östlicher Richtung grenzt Weida als nächste Stadt an die Ortschaft an. Hier befinden sich Einkaufsmöglichkeiten, Ärztehäuser, Schulen, Kindergärten, Gewerbetreibende, sowie Bus- und Bahnanschluss.
Die im Kern romanische Dorfkirche von Burkersdorf wurde als Chorturmkirche erbaut. Bemerkenswert ist ein steinerner Epitaph für Oswald Roeder von 1580. Die letzte Sanierung der Kirche wurde 1996 mit Unterstützung der Deutschen Stiftung Denkmalschutz durchgeführt.
In der Umgebung des Ortes befinden sich ein Golfpark mit italienischem Clubrestaurant und 2 Pferdesportanlagen. Das durch Rad- und Wanderwege erschlossene ländliche Gebiet besitzt mehrere Teiche und ist somit ein Anziehungspunkt für Sportbegeisterte und Naturfreunde. Die naheliegende Aumatalsperre mit Campingplatz lädt zum Baden und Entspannen ein.
Der dritthöchste Bergfried Thüringens ist die Osterburg. Sie liegt markant über dem Fluss Weida und der gleichnamigen Stadt und gilt als besonderes Ausflugsziel. In den Sommermonaten wird diese u.a. für Hochzeiten, Basare und Open-Air-Veranstaltungen genutzt.
Infrastruktur (im Umkreis von 5 km):
Apotheke, Lebensmittel-Discount, Allgemeinmediziner, Kindergarten, Grundschule, Realschule, Gymnasium, Öffentliche Verkehrsmittel
# Sonstiges
Heizungsart: Fußbodenheizung
Energieträger: Luft-/Wasserwärme
Sonstige Unterlagen:
– https://www.ohne-makler.net/immobilie/file/1589770.pdf (Exposé)
Makleranfragen nicht erwünscht. Nach § 7 UWG sind unaufgeforderte Kontaktaufnahmen durch Makler ohne ausdrückliche Einwilligung des Empfängers verboten!
ohne-makler (OM) ist weder Anbieter noch Vermittler der Immobilie. OM betreibt eine Plattform für Immobilieneigentümer, die unter anderem die gleichzeitige Veröffentlichung einzelner Inserate auf mehreren Immobilienportalen ermöglicht. Die Inhalte dieser Inserate werden ausschließlich von Dritten verantwortet. Für die Richtigkeit, Vollständigkeit oder Rechtmäßigkeit der Angaben übernimmt OM keine Haftung. Hinweise auf mögliche Rechtsverstöße können jederzeit gemeldet werden und werden nach Prüfung umgehend bearbeitet.
# Energie
Energieausweis: Energiebedarfsausweis
Endenergiebedarf: 17 kWh/(m²*a)
Energieeffizienzklasse: A+
Heizungsart: Fußbodenheizung
Wesentliche Energieträger: Wärmepumpe Luft-Wasser
Anbieter-Objekt-ID: 247574




















